Beschrijving
Vanwege de grote belangstelling is het helaas niet meer mogelijk om een bezichtiging in te plannen. Laat gerust je contactgegevens achter zodat wij deze op de reservelijst kunnen plaatsen.
Leuke en moderne instapklare tussenwoning gelegen op een fijne locatie in Schaesbergerveld (Heerlen)
Deze woning is ideaal voor starters en gezinnen die op zoek zijn naar een woning waar direct in gewoond kan worden.
Wat maakt deze woning bijzonder?
* Gelegen tegenover een groene omgeving met een honden uitlaat gebied richting een ruïne van Schaesberg;
* Instapklaar;
* Lichte doorzonwoonkamer;
* Nette keuken en badkamer;
* 3 ruime slaapkamers, waarvan 1 slaapkamer met walk-in closet;
* Kelder voor extra opbergruimte;
* Ruime achtertuin met veel privacy en een achteringang..
De woning is gelegen in de wijk Schaesbergerveld te Heerlen. Een fijne en rustige woonomgeving met scholen, winkels, openbaar vervoer en uitvalswegen in de directe nabijheid, evenals groen- en wandelvoorzieningen.
Indeling
We komen binnen via de entree, die toegang biedt tot de woonkamer, de kelder, de meterkast en het moderne zwevend toilet, afgewerkt met Portugese tegels.
De begane grond is grotendeels voorzien van een strakke visgraatvloer.
De lichte doorzonwoonkamer voelt direct warm en ruim aan en is uitgerust met een gashaard en airconditioning, die ook kan verwarmen. Aansluitend ligt de open keuken in U-opstelling met een moderne hoogglans afwerking. De keuken beschikt over een koelkast met vriezer, inductiekookplaat, afzuigkap, oven en vaatwasser. Vanuit hier kijk je prettig uit over de achtertuin.
Eerste verdieping
Via de overloop op de eerste verdieping zijn twee slaapkamers en de badkamer bereikbaar. Beide slaapkamers zijn afgewerkt met de originele plankenvloer.
De slaapkamer aan de voorzijde heeft een oppervlakte van circa 12 m² en beschikt over praktische muurkasten. De slaapkamer aan de achterzijde is circa 13 m² groot en eveneens voorzien van muurkasten. Aangrenzend bevindt zich een leuke walk-in closet van ruim 5 m², oorspronkelijk een extra slaapkamer. Deze ruimte kan desgewenst opnieuw worden gebruikt als (kinder)slaapkamer of als handige werk- of thuiswerkplek.
De badkamer is modern en smaakvol ingericht en voorzien van een wastafelmeubel, een ligbad met douchefunctie, een raam voor natuurlijk daglicht en ventilatie en twee sfeervolle niches.
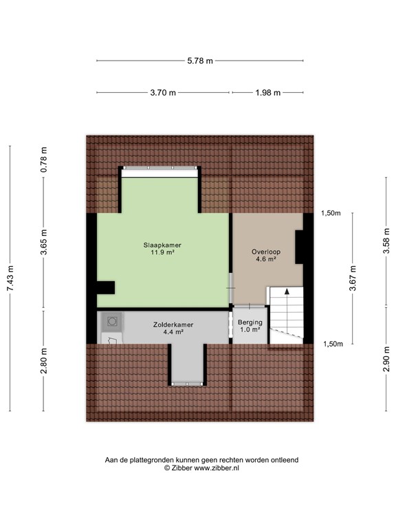
Tweede verdieping
Via een vaste trap bereik je de tweede verdieping. De overloop biedt toegang tot de derde slaapkamer (bijna 12 m²), de wasruimte en een extra berging. De verdieping is, net als de eerste etage, afgewerkt met dezelfde plankenvloer. Zowel de slaapkamer als de wasruimte beschikken over een dakkapel, waardoor er prettig veel daglicht binnenvalt. Kortom, een praktische en veelzijdige verdieping met volop mogelijkheden.
Overige verdiepingen
De woning beschikt over een kelder verdeeld in twee praktische ruimtes. Eén ruimte van circa 8 m² met de opstelplaats voor de cv-ketel, terwijl de andere ruimte van circa 9 m² uitstekend geschikt is voor extra opslag. Daarnaast is er de mogelijkheid om een doorgang naar de achtertuin te creëren, wat deze kelder nog functioneler maakt.
Tuin
De woning beschikt over zowel een voor- als achtertuin. De achtertuin ligt op het zonnige zuidwesten en biedt een sfeervol terras met houten vloer, overkapping én zonnescherm. Via een klein trappetje bereik je het overige deel van de tuin, dat deels is betegeld en deels met gras is aangelegd. De tuin beschikt over een praktische achteringang en biedt daarbij veel privacy.
Bijzonderheden
* CV- ketel, eigendom, 2020/2021;
* Zonnepanelen, eigendom, 8 stuks, 2025;
* Kozijnen van kunststof en hout, dubbelglas, deels voorzien van rolluiken;
* Doorgang vanuit kelder naar achtertuin mogelijk, nu gesloten;
* energielabel D (voor plaatsing van zonnepanelen);
* Aanvaarding bij voorkeur per 1 mei 2026.
Tot slot:
* Deze verkoopinformatie is met de nodige zorgvuldigheid samengesteld. Hierbij zijn wij deels afhankelijk van informatie die wij van derden ontvangen. Aan onjuistheden en/of onvolkomenheden kunt u echter geen rechten ontlenen. Indien bepaalde informatie voor u van wezenlijk belang is dan adviseren wij u deze op juistheid te controleren. Onzerzijds wordt geen aansprakelijkheid aanvaardt voor enige onvolledigheid, onjuistheid of anderszins, dan wel de gevolgen daarvan. Alle opgegeven maten en oppervlakten zijn indicatief;
* Koper is te allen tijde gerechtigd om voor eigen rekening een bouwkundig onderzoek te (laten) verrichten, dan wel andere adviseurs te raadplegen teneinde een goed inzicht te verkrijgen in de staat van onderhoud of andere aspecten van de onroerende zaak. Koper dient bij het doen van een bod wel direct aan te geven of hij een dergelijk onderzoek wenst;
* Indien een CV-ketel en/of warmtevoorziening een huurtoestel is, dient koper deze overeenkomst over te nemen.
* De waarborgsom/bankgarantie is 10% van de koopsom. De koper dient deze 1 week na het vervallen van de ontbindende voorwaarden bij de desbetreffende notaris te deponeren;
* Ter bescherming van de belangen van zowel koper als verkoper, wordt uitdrukkelijk gesteld dat een koopovereenkomst met betrekking tot deze onroerende zaak eerst dan tot stand komt, nadat koper en verkoper de koopovereenkomst hebben getekend ("schriftelijkheidsvereiste").
Plattegronden
180919249_1603033_breda_begane_grond_first_design_20260108_5b27e4.jpg
180919249_1603033_breda_eerste_verdiepi_first_design_20260108_dc7ded.jpg
180919249_1603033_breda_tweede_verdiepi_first_design_20260108_926369.jpg
180919249_1603033_breda_kelder_first_design_20260108_7a35ff.jpg