Beschrijving
Aan de Wingerd 17 ligt deze moderne en strak afgewerkte tussenwoning, gelegen in een rustige en geliefde woonwijk. Met aan de overzijde een speelveldje is dit een ideale plek voor (jonge) gezinnen.
Wat maakt deze woning bijzonder:
* Instapklaar en modern afgewerkt
* Gelegen in een rustige en geliefde woonwijk (Welten)
* Speelveldje direct aan de overzijde
* Luxe open keuken
* Moderne, strakke badkamer
* Drie volwaardige slaapkamers
* Inpandige garage
* Zonnige achtertuin op het Zuidwesten
Enthousiast? Maak snel een afspraak voor een bezichtiging — we laten je deze woning graag zien!
Indeling
Via de entree kom je binnen in de hal, waar direct de sfeervolle Portugese tegelvloer opvalt. Hier bevinden zich tevens de meterkast (voorzien van modern schakelmateriaal) en de trapopgang naar de verdieping.
Vanuit de hal is de inpandige garage bereikbaar. Deze is uitgevoerd met een elektrische poort en biedt naast parkeergelegenheid ook praktische bergruimte. Aangrenzend bevindt zich een separate berging en een moderne toiletruimte, voorzien van een zwevend toilet.
Aan de achterzijde van de woning ligt een multifunctionele ruimte, momenteel ingericht als bijkeuken en hobbyruimte. Deze ruimte is voorzien van een aanrechtblad en aansluitingen voor witgoed en biedt volop mogelijkheden voor gebruik naar eigen wens. Vanuit hier is er direct toegang tot de tuin.
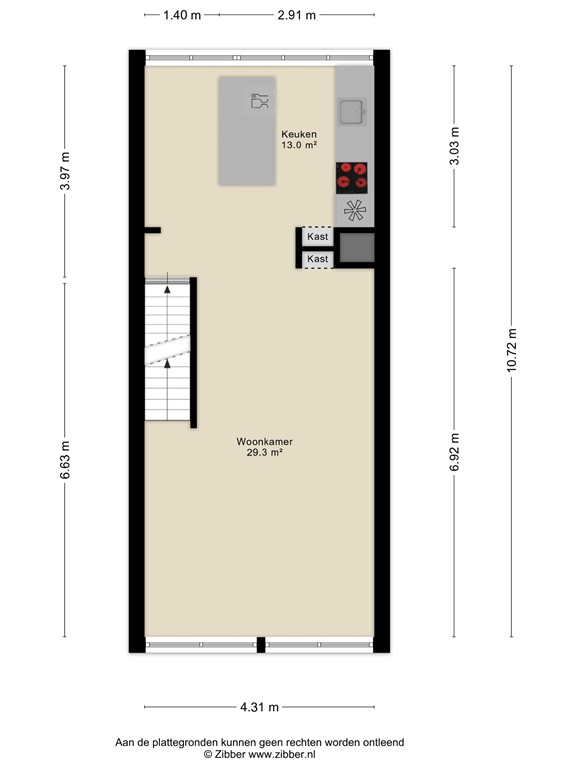
Eerste verdieping
Op de eerste verdieping bevindt zich de ruime en lichte woonkamer, waar de grote raampartijen zorgen voor een prettige lichtinval en een open, ruimtelijk gevoel. De strak afgewerkte houten vloer geeft het geheel een warme en moderne uitstraling.
De woonkamer biedt volop ruimte voor zowel een comfortabele zithoek als een royale eethoek en staat in directe verbinding met de keuken.
Aan de achterzijde ligt de luxe open keuken met spoeleiland, een echte eyecatcher van de woning. De keuken is modern uitgevoerd en voorzien van diverse inbouwapparatuur, waaronder een gaskooktoestel, vaatwasser, koelkast en afzuiginstallatie. Het spoeleiland zorgt niet alleen voor extra werkruimte, maar ook voor een gezellige plek om samen te komen.
Tweede verdieping
Via de overloop zijn drie slaapkamers bereikbaar, stuk voor stuk netjes afgewerkt en voorzien van een prettige lichtinval. De hoofdslaapkamer is gelegen aan de achterzijde van de woning. De overige kamers zijn eveneens goed van formaat en daardoor geschikt als slaap-, werk- of kinderkamer.
De moderne badkamer (2025) is stijlvol uitgevoerd en voorzien van een inloopdouche, wastafelmeubel en toilet. De afwerking is strak en eigentijds, waardoor ook deze ruimte volledig instapklaar is.
Tuin
Aan de voorzijde van de woning bevindt zich een oprit. Daarnaast is er voldoende parkeergelegenheid in de straat aanwezig.
De achtertuin is gelegen op het zuidwesten en is sfeervol aangelegd met een combinatie van terras, groen en een houten vlonder. De tuin is direct bereikbaar vanuit de tuinkamer, waardoor binnen en buiten op een prettige manier met elkaar in verbinding staan.
Door de gunstige zonligging is het hier de hele middag en avond heerlijk vertoeven.
Bijzonderheden
* Volledig voorzien van kunststof kozijnen met HR++ beglazing
* Cv-installatie (2016) in eigendom
* Meterkast met voldoende groepen en modern schakelmateriaal
* Badkamer vernieuwd in 2025
* Energielabel C
Tot slot:
* Deze verkoopinformatie is met de nodige zorgvuldigheid samengesteld. Hierbij zijn wij deels afhankelijk van informatie die wij van derden ontvangen. Aan onjuistheden en/of onvolkomenheden kunt u echter geen rechten ontlenen. Indien bepaalde informatie voor u van wezenlijk belang is dan adviseren wij u deze op juistheid te controleren. Onzerzijds wordt geen aansprakelijkheid aanvaardt voor enige onvolledigheid, onjuistheid of anderszins, dan wel de gevolgen daarvan. Alle opgegeven maten en oppervlakten zijn indicatief;
* Koper is te allen tijde gerechtigd om voor eigen rekening een bouwkundig onderzoek te (laten) verrichten, dan wel andere adviseurs te raadplegen teneinde een goed inzicht te verkrijgen in de staat van onderhoud of andere aspecten van de onroerende zaak. Koper dient bij het doen van een bod wel direct aan te geven of hij een dergelijk onderzoek wenst;
* Indien een CV-ketel en/of warmtevoorziening een huurtoestel is, dient koper deze overeenkomst over te nemen.
* De waarborgsom/bankgarantie is 10% van de koopsom. De koper dient deze 1 week na het vervallen van de ontbindende voorwaarden bij de desbetreffende notaris te deponeren;
* Ter bescherming van de belangen van zowel koper als verkoper, wordt uitdrukkelijk gesteld dat een koopovereenkomst met betrekking tot deze onroerende zaak eerst dan tot stand komt, nadat koper en verkoper de koopovereenkomst hebben getekend ("schriftelijkheidsvereiste").
Plattegronden
183661300_1638587_de_wi_begane_grond_first_design_20260323_e274d5.jpg
183661300_1638587_de_wi_eerste_verdiepi_first_design_20260323_ea2fc4.jpg
183661300_1638587_de_wi_tweede_verdiepi_first_design_20260323_69296f.jpg
kadastrale kaart ingetekend (7)-afbeeldingen-1.jpg