Beschrijving
Deze sfeervolle halfvrijstaande woning, gelegen aan de rand van het Aambos én aan de buitenrand van het woningaanbod in Heerlen, biedt precies die unieke combinatie van rust, ruimte en karakter. Niet voor niets draagt het huis een eigen naam: “A Genne Vrissje Put”.
Met een royaal woonoppervlak van ca. 181 m², een oprit met garage en maar liefst vijf slaapkamers (met mogelijkheid voor een zesde) is dit een ideale gezinswoning. De karakteristieke glas-in-loodramen, het vrije zicht richting het Aambos geven het geheel een warme, bijzondere charme. En dat terwijl het bruisende centrum van Heerlen zich op korte afstand bevindt.
Pluspunten op een rij:
* Ca. 181 m² woonoppervlakte;
* Garage en oprit;
* 5 slaapkamers, mogelijkheid tot 6;
* Karakteristieke glas-in-loodramen;
* Vrij uitzicht;
* Woning met veel mogelijkheden.
Kortom: kom gerust een kijkje nemen om deze mooie woning zelf te bewonderen. Maak vrijblijvend een afspraak voor een bezichtiging!
Indeling
Bij binnenkomst betreed je een zeer royale entree, waar meteen de authentieke sfeer van de woning voelbaar is. De prachtige glas-in-loodramen, waarin de naam van de woning “A Genne Vrissje Put” is verwerkt, vormen een echte eyecatcher. De bijpassende tegelvloer sluit perfect aan bij de stijl van het huis. Vanuit de hal zijn de woonkamer, eetkamer, gesloten keuken en een tweede hal met een ruim zwevend toilet met fonteintje bereikbaar.
De lichte woonkamer van ca. 43 m² ademt warmte en karakter. Ook hier zorgen de glas-in-loodramen – voorzien van dubbele beglazing – voor een sfeervolle uitstraling. De erker aan de voorzijde biedt een prachtig, vrij uitzicht over de groene omgeving aan de overkant; een uniek gevoel van rust op slechts enkele minuten van het centrum van Heerlen. Aansluitend bevindt zich de eetkamer, van waaruit je via openslaande deuren direct de voor- en zijtuin bereikt.
De gesloten keuken in hoekopstelling beschikt over alle benodigde apparatuur: een 4-pits gaskooktoestel, afzuigkap, vaatwasser, koelkast, vriezer en oven. Vanuit de keuken heb je prettig uitzicht op de achtertuin en tevens directe toegang daartoe. Via een aparte hal, die eveneens naar de achtertuin leidt, bereik je het toilet.
Eerste verdieping
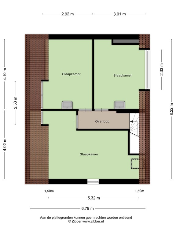
Via de trapopgang bereiken we de ruime overloop op de eerste verdieping, die toegang biedt tot drie slaapkamers en de badkamer.
De eerste slaapkamer (ca. 17 m²) ligt aan de voorzijde van de woning en beschikt over een balkon van ca. 5 m², waar je heerlijk kunt genieten van de buitenlucht en het fraaie vrije uitzicht. De tweede slaapkamer (eveneens ca. 17 m²) bevindt zich aan de achterzijde/zijkant van de woning en biedt volop ruimte voor een tweepersoons inrichting. De derde slaapkamer, ca. 7,5 m², heeft – net als de eerste – toegang tot een ruim balkon, wat zorgt voor extra lichtinval en een prettige buitenbeleving.
De badkamer (ca. 8 m²) heeft dezelfde warme en authentieke sfeer als de rest van de woning, mede dankzij de charmante erker met glas-in-loodramen. De ruimte is volledig uitgerust met een douche, ligbad, tweede toilet en een wastafel.
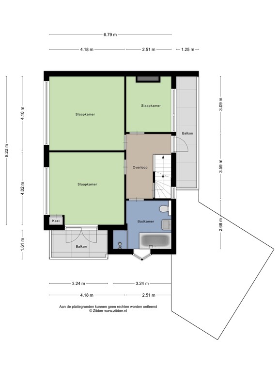
Tweede verdieping
Via een vaste trap met tussendeur bereiken we de tweede verdieping, die verrassend veel ruimte biedt. De overloop geeft toegang tot twee slaapkamers van beide ca. 12 m², ieder voorzien van een dakkapel en een wastafel. Daarnaast bevindt zich op deze verdieping een extra ruimte van ca. 18 m². Met wat aandacht en afwerking kan deze worden omgetoverd tot een zesde slaapkamer, kantoorruimte of hobbykamer.
Overige verdiepingen
De woning beschikt over een ruime kelder van in totaal ca. 24 m², onderverdeeld in twee functionele ruimtes. Deze verdieping biedt volop opbergmogelijkheden en is daarmee ideaal voor provisie, opslag of hobbyspullen. Daarnaast vind je hier de wasruimte en de opstelplaats van de cv-ketel. Een praktische en veelzijdige toevoeging aan de woning.
Balkon
De woning beschikt over twee balkons op de eerste verdieping.
Het eerste balkon is toegankelijk via de overloop en biedt een fijne buitenplek met mooi uitzicht.
Het tweede balkon is bereikbaar vanuit één van de slaapkamers, waardoor deze kamer een extra ruimtelijk en licht gevoel krijgt.
Tuin
De woning beschikt over een voor-, zij- en achtertuin die samen een heerlijke buitenbeleving bieden. De voortuin met oprit geeft toegang tot de garage en vormt een nette entree van het huis. De zijtuin, gelegen op het zuiden en bereikbaar vanuit de eetkamer, is een zonnige plek op het Zuiden. De onderhoudsvriendelijke achtertuin van ca. 60 m² is bereikbaar via de keuken en een kleine hal en biedt eveneens toegang tot de garage.
Bijzonderheden
* Gevel voorzijde geïsoleerd met minerale glaswolvlokken;
* Houten kozijnen met grotendeels dubbel glas;
* CV- ketel, eigendom, 2013;
* Aanvaarding per 1 maart 2026.
Tot slot:
* Deze verkoopinformatie is met de nodige zorgvuldigheid samengesteld. Hierbij zijn wij deels afhankelijk van informatie die wij van derden ontvangen. Aan onjuistheden en/of onvolkomenheden kunt u echter geen rechten ontlenen. Indien bepaalde informatie voor u van wezenlijk belang is dan adviseren wij u deze op juistheid te controleren. Onzerzijds wordt geen aansprakelijkheid aanvaardt voor enige onvolledigheid, onjuistheid of anderszins, dan wel de gevolgen daarvan. Alle opgegeven maten en oppervlakten zijn indicatief;
* Koper is te allen tijde gerechtigd om voor eigen rekening een bouwkundig onderzoek te (laten) verrichten, dan wel andere adviseurs te raadplegen teneinde een goed inzicht te verkrijgen in de staat van onderhoud of andere aspecten van de onroerende zaak. Koper dient bij het doen van een bod wel direct aan te geven of hij een dergelijk onderzoek wenst;
* Indien een CV-ketel en/of warmtevoorziening een huurtoestel is, dient koper deze overeenkomst over te nemen.
* De waarborgsom/bankgarantie is 10% van de koopsom. De koper dient deze 1 week na het vervallen van de ontbindende voorwaarden bij de desbetreffende notaris te deponeren;
* Ter bescherming van de belangen van zowel koper als verkoper, wordt uitdrukkelijk gesteld dat een koopovereenkomst met betrekking tot deze onroerende zaak eerst dan tot stand komt, nadat koper en verkoper de koopovereenkomst hebben getekend ("schriftelijkheidsvereiste").
Plattegronden
179958373_1595296_groen_begane_grond_first_design_20251201_698b80.jpg
179958373_1595296_groen_eerste_verdiepi_first_design_20251201_892ecf.jpg
179958373_1595296_groen_tweede_verdiepi_first_design_20251201_4b59f8.jpg
179958373_1595296_groen_kelder_first_design_20251201_db8ea3.jpg
Kadastrale kaart ingetekend-78.jpg