Beschrijving
Vanwege de grote belangstelling is het helaas niet meer mogelijk om een bezichtiging in te plannen. Laat gerust je contactgegevens achter zodat wij deze op de reservelijst kunnen plaatsen.
Instapklare tussenwoning met parkeergelegenheid en 4 slaapkamers in Heerlen
Op zoek naar een fijne, instapklare woning? Deze woning biedt comfort en een moderne afwerking. Met vier slaapkamers, een recent vernieuwde keuken (2025) en een moderne badkamer is dit een ideale gezinswoning.
Wat maakt deze woning bijzonder?
- Instapklaar;
- 4 slaapkamers;
- Keuken met kookeiland (2025);
- Moderne badkamer;
- Kozijnen vernieuwd in 2025;
- Grotendeels voorzien van rolluiken;
- Achtertuin met achteringang.
De woning is gelegen in een prettige woonomgeving met alle dagelijkse voorzieningen zoals supermarkten, scholen en openbaar vervoer in de buurt. Daarnaast ligt het centrum van Heerlen op korte afstand en zijn uitvalswegen richting onder andere Maastricht, Eindhoven en Aken snel bereikbaar.
Indeling
Via de entree betreden we de woning, met toegang tot de woonkamer, meterkast en het volledig betegelde, zwevend toilet met fonteintje. De nette grindvloer, die doorloopt over de gehele begane grond, zorgt direct voor een verzorgde en moderne uitstraling.
De lichte doorzonwoonkamer vormt een fijne leefruimte met veel natuurlijk daglicht. Daarnaast is er een praktische trapkast aanwezig, ideaal voor extra bergruimte.
Aan de achterzijde bevindt zich de moderne keuken met kookeiland (2025). Het kookeiland beschikt over een gezellig zitgedeelte en vormt het hart van de woning. De keuken is uitgevoerd met een kunststof werkblad en voorzien van diverse inbouwapparatuur, waaronder een Bora inductiekookplaat, combimagnetron, vaatwasser, koelkast en diepvries. Vanuit de keuken is er directe toegang tot de achtertuin.
Eerste verdieping
Via de overloop op de eerste verdieping bereiken we drie slaapkamers en de badkamer.
De eerste slaapkamer is gelegen aan de voorzijde van de woning en heeft een oppervlakte van ca. 12,5 m². De tweede en derde slaapkamer liggen aan de achterzijde en zijn ca. 13 m² en ca. 6 m² groot. Alle slaapkamers zijn netjes afgewerkt en voorzien van een laminaatvloer en rolluiken.
De moderne badkamer is compleet uitgevoerd met een grindvloer en volledig betegelde wanden. Daarnaast beschikt de badkamer over een ligbad, douchecabine, wastafelmeubel en een tweede toilet. Het aanwezige raam zorgt voor natuurlijke ventilatie en prettige lichtinval.
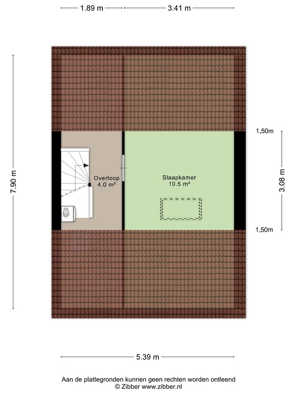
Tweede verdieping
Via een vaste trapopgang bereiken we de overloop op de tweede verdieping. Hier bevindt zich de opstelplaats voor de cv-ketel en de wasmachine. Vanuit de overloop is de vierde slaapkamer bereikbaar, met een oppervlakte van ca. 10,5 m². Dankzij het grote dakraam is er prettig lichtinval, en de knieschotten zorgen voor praktische opbergruimte.
Tuin
De woning is voorzien van een voor- en achtertuin. In de voortuin is er parkeergelegenheid zodat je de auto op eigen terrein kunt parkeren. De achtertuin ligt op het zuidwesten en is voorzien van een terrasgedeelte en deels gras. De tuin is volledig omheind en beschikt over een berging van bijna 8 m² en een praktische achteringang.
Bijzonderheden
* Na opmaken energielabel (C) nog kozijnen vervangen en zonnepanelen geplaatst;
* Kunststof kozijnen (2025) met HR++ beglazing;
* Grotendeels voorzien van rolluiken;
* CV- ketel, eigendom, 2007;
* Zonnepanelen, 8 stuks, huur ca. € 34,26 per maand.
Tot slot:
* Deze verkoopinformatie is met de nodige zorgvuldigheid samengesteld. Hierbij zijn wij deels afhankelijk van informatie die wij van derden ontvangen. Aan onjuistheden en/of onvolkomenheden kunt u echter geen rechten ontlenen. Indien bepaalde informatie voor u van wezenlijk belang is dan adviseren wij u deze op juistheid te controleren. Onzerzijds wordt geen aansprakelijkheid aanvaardt voor enige onvolledigheid, onjuistheid of anderszins, dan wel de gevolgen daarvan. Alle opgegeven maten en oppervlakten zijn indicatief;
* Koper is te allen tijde gerechtigd om voor eigen rekening een bouwkundig onderzoek te (laten) verrichten, dan wel andere adviseurs te raadplegen teneinde een goed inzicht te verkrijgen in de staat van onderhoud of andere aspecten van de onroerende zaak. Koper dient bij het doen van een bod wel direct aan te geven of hij een dergelijk onderzoek wenst;
* Indien een CV-ketel en/of warmtevoorziening een huurtoestel is, dient koper deze overeenkomst over te nemen.
* De waarborgsom/bankgarantie is 10% van de koopsom. De koper dient deze 1 week na het vervallen van de ontbindende voorwaarden bij de desbetreffende notaris te deponeren;
* Ter bescherming van de belangen van zowel koper als verkoper, wordt uitdrukkelijk gesteld dat een koopovereenkomst met betrekking tot deze onroerende zaak eerst dan tot stand komt, nadat koper en verkoper de koopovereenkomst hebben getekend ("schriftelijkheidsvereiste").
Plattegronden
183849748_1639727_rembr_begane_grond_first_design_20260328_3e8d13.jpg
183849748_1639727_rembr_eerste_verdiepi_first_design_20260328_f4449c.jpg
183849748_1639727_rembr_tweede_verdiepi_first_design_20260328_98eb6f.jpg
183849748_1639727_rembr_berging_first_design_20260328_af01bd.jpg
Kadastrale kaart ingetekend-119.jpg