Beschrijving
Ruime tussenwoning met circa 151 m² woonoppervlakte, serre en vier royale slaapkamers (uitbreidbaar tot zes) in Hoensbroek
Ben je op zoek naar een ruime en energiezuinige gezinswoning met energielabel A? Deze woning biedt veel leefcomfort, een praktische indeling én volop mogelijkheden. Met vier royale slaapkamers (uitbreidbaar tot zes), een lichte serre en voldoende bergruimte is dit een ideale woning voor een (groot) gezin of voor iedereen die extra ruimte zoekt. Binnen ervaar je rust en comfort, ook al ligt de woning aan een doorgaande weg, dankzij de geluidswerende beglazing merk je dit binnenshuis nauwelijks.
Wat maakt deze woning bijzonder?
* Energielabel A;
* Ca. 151 m² woonoppervlakte;
* Vier ruime slaapkamers (mogelijkheid tot zes);
* Serre aan de achterzijde;
* Voldoende bergruimte;
* Geluidswerende beglazing;
* Nabij winkels, scholen en uitvalswegen.
Kom gerust een kijkje nemen en ervaar de ruimtes en de mogelijkheden die deze woning biedt.
Indeling
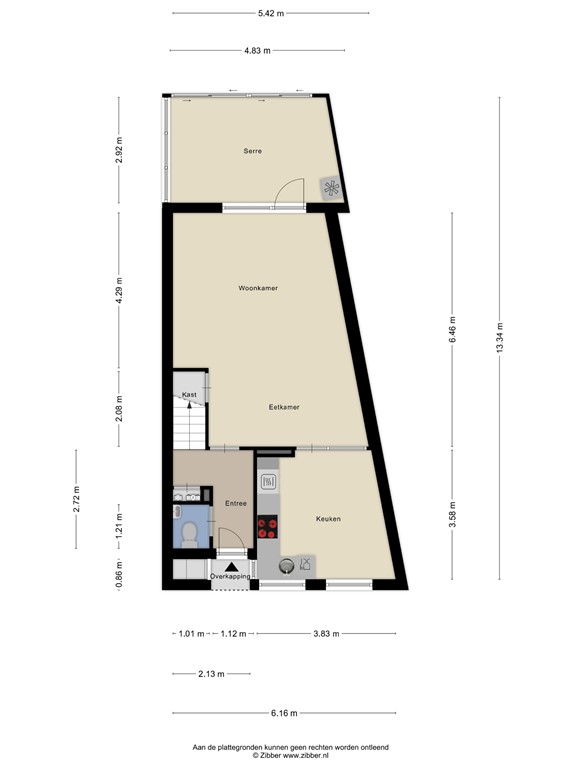
We komen binnen via een overdekte entree. Vanuit de hal is er toegang tot de toiletruimte, voorzien van staand toilet met fonteintje en mechanische afzuiging.
We lopen door naar de ruime woonkamer, waar direct opvalt dat de tegelvloer doorloopt over de volledige begane grond. Dit zorgt voor een rustige, ruimtelijke uitstraling. Vanuit de woonkamer is er toegang tot zowel de keuken, de serre als de handige trapkast.
De keuken ligt aan de voorzijde van de woning en biedt uitzicht op de straat. De ruimte is ingericht in een praktische hoekopstelling en uitgerust met diverse inbouwapparatuur, waaronder een inductiekookplaat, afzuigkap, vaatwasser, koelkast en een combi-oven/magnetron.
Aan de achterzijde van de woning bevindt zich de serre, die dankzij de glazen wanden het hele jaar door een aangename plek is om te verblijven. Een ideale ruimte om te ontspannen of als extra eet- of zitkamer.
Eerste verdieping
Via de hal lopen we verder naar de eerste verdieping. Hier valt direct de ruime overloop op, die toegang biedt tot twee slaapkamers en de badkamer.
De slaapkamer aan de voorzijde heeft een oppervlakte van ca. 18 m². De slaapkamer aan de achterzijde meet ca. 20 m².
De badkamer is functioneel ingericht en voorzien van een tweede toilet, een wastafelmeubel, een douche en de aansluiting voor de wasmachine.
Tweede verdieping
Via een vaste trap bereiken we de tweede, zeer ruime verdieping. De overloop biedt toegang tot twee slaapkamers en een aparte bergruimte, waar ook de CV-ketel is geplaatst. De slaapkamer aan de voorzijde is bijzonder ruim en veelzijdig in te richten. Denk bijvoorbeeld aan een thuiswerkplek, hobbykamer of een extra ruime slaapkamer. De slaapkamer aan de achterzijde beschikt over twee dakramen, wat zorgt voor veel natuurlijk licht. Daarnaast is er handige inbouwkast- en bergruimte aanwezig. Deze verdieping biedt volop mogelijkheden voor grotere gezinnen of wie extra leefruimte zoekt.
Tuin
De woning beschikt over een verzorgde achtertuin, gelegen op het zuidwesten. Dankzij deze gunstige ligging kun je hier volop genieten van de middag- en avondzon.
De tuin is voorzien van een achteringang en een praktische berging. Aansluitend aan de woning bevindt zich de serre met glaswanden, die een fijne overgang vormt tussen binnen en buiten en in elk seizoen een comfortabele plek biedt om te zitten. Een onderhoudsvriendelijke tuin met volop mogelijkheden.
Bijzonderheden
* Ramen voorzijde woning zijn geluidswerend;
* Grotendeels voorzien van rolluiken;
* 1/15 onverdeeld aandeel in een parkeerterrein;
* CV-ketel 2017, gehuurd ca. € 32,21 per maand;
* Aanvaarding in overleg.
Tot slot:
* Deze verkoopinformatie is met de nodige zorgvuldigheid samengesteld. Hierbij zijn wij deels afhankelijk van informatie die wij van derden ontvangen. Aan onjuistheden en/of onvolkomenheden kunt u echter geen rechten ontlenen. Indien bepaalde informatie voor u van wezenlijk belang is dan adviseren wij u deze op juistheid te controleren. Onzerzijds wordt geen aansprakelijkheid aanvaardt voor enige onvolledigheid, onjuistheid of anderszins, dan wel de gevolgen daarvan. Alle opgegeven maten en oppervlakten zijn indicatief;
* Koper is te allen tijde gerechtigd om voor eigen rekening een bouwkundig onderzoek te (laten) verrichten, dan wel andere adviseurs te raadplegen teneinde een goed inzicht te verkrijgen in de staat van onderhoud of andere aspecten van de onroerende zaak. Koper dient bij het doen van een bod wel direct aan te geven of hij een dergelijk onderzoek wenst;
* Indien een CV-ketel en/of warmtevoorziening een huurtoestel is, dient koper deze overeenkomst over te nemen.
* De waarborgsom/bankgarantie is 10% van de koopsom. De koper dient deze 1 week na het vervallen van de ontbindende voorwaarden bij de desbetreffende notaris te deponeren;
* Ter bescherming van de belangen van zowel koper als verkoper, wordt uitdrukkelijk gesteld dat een koopovereenkomst met betrekking tot deze onroerende zaak eerst dan tot stand komt, nadat koper en verkoper de koopovereenkomst hebben getekend ("schriftelijkheidsvereiste").
Plattegronden
175481290_1571293_akers_begane_grond_first_design_20250805_3ec8ac.jpg
175481290_1571293_akers_eerste_verdiepi_first_design_20250805_37fd39.jpg
175481290_1571293_akers_tweede_verdiepi_first_design_20250805_abdb23.jpg
175481290_1571293_akers_berging_first_design_20250805_4625a6.jpg
Kadastrale kaart ingetekend-27.jpg