Beschrijving
In een geliefde en rustige woonwijk van Landgraaf staat deze keurig onderhouden en instapklare twee-onder-één-kapwoning. Met onder meer vier slaapkamers, een ruime oprit met garage en een fijne achtertuin op het zuidwesten is dit een ideale gezinswoning waar je zonder klussen zo in kunt.
Pluspunten van de woning:
* Instapklaar en netjes onderhouden;
* Energielabel A (recent opgesteld) – energiezuinig wonen;
* Uitstekende isolatie én geluidsdemping door aanwezigheid triple beglazing in vrijwel alle vertrekken;
* Vier slaapkamers;
* Moderne badkamer met ligbad én aparte douche;
* Woonoppervlakte van ca. 111 m²;
* Grote oprit met garage;
* Ruime achtertuin met overkapping.
De woning ligt in een rustige, kindvriendelijke wijk met alle belangrijke voorzieningen in de directe omgeving. Scholen, winkels, speeltuinen en openbaar vervoer zijn binnen handbereik. Ook uitvalswegen richting Heerlen, Kerkrade en Duitsland zijn eenvoudig bereikbaar. De natuurgebieden Brunssummerheide en de Tevenerheide zijn ook op korte afstand bereikbaar.
Kortom: een complete, comfortabele gezinswoning op een fijne locatie!
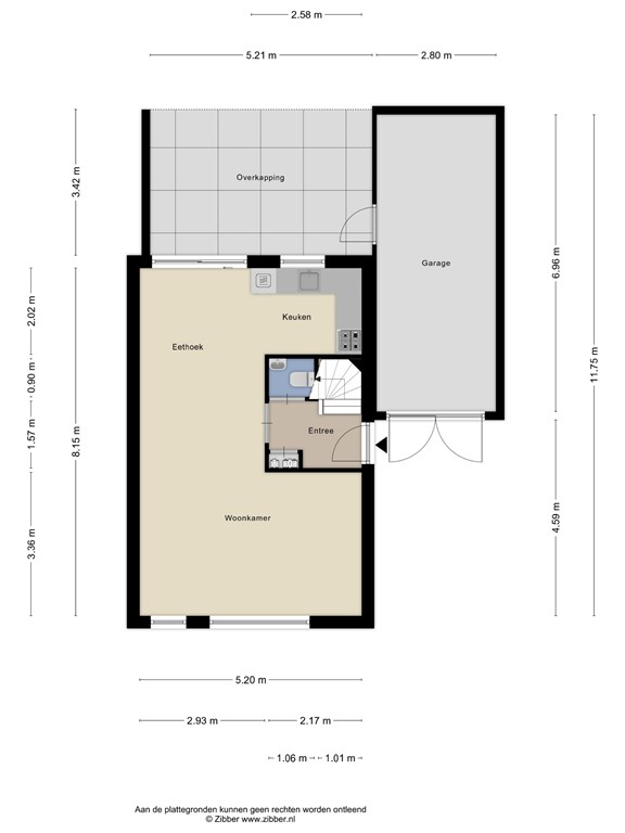
Indeling
Via de entree, voorzien van een nieuwe aluminium voordeur met triple glas, betreden we de woning. Hier bevinden zich de vernieuwde meterkast met aardlekautomaten, het staand toilet met fonteintje en de doorgang naar de woonkamer. De doorzonwoonkamer is licht en heeft een nette laminaatvloer die in 2024 volledig is vernieuwd. Met een oppervlakte van ruim 30 m² biedt de woonkamer een praktische en comfortabele leefruimte. In de eetkamer zien we een designradiator en een moderne schuifpui die zorgt voor goede lichtinval.
Aansluitend ligt de open keuken in hoekopstelling, voorzien van een 4-pits gaskookstel, afzuigkap, koelkast, vaatwasser en combi-magnetron. Via de schuifpui in de woonkamer is de achtertuin met overkapping bereikbaar.
Eerste verdieping
Via de trap bereiken we de overloop, met toegang tot drie slaapkamers en de badkamer. Aan de voorzijde liggen twee slaapkamers van circa 7 m² en 12 m². De derde slaapkamer, circa 9 m² groot, bevindt zich aan de achterzijde en biedt uitzicht op de tuin.
De badkamer is modern en compleet uitgevoerd met een ligbad, inloopdouche, wastafelmeubel, een tweede toilet. Daarnaast zien we hier nog een designradiator en een spiegel met verwarmingselement. Dankzij het aanwezige raam heeft de ruimte prettig daglicht en natuurlijke ventilatie.
Tweede verdieping
Via een vaste trap bereiken we de tweede verdieping, een ruime zolder met ruim 14 m² aan oppervlakte. Dankzij het grote dakraam valt er veel daglicht binnen, waardoor hier eenvoudig een vierde slaapkamer gerealiseerd kan worden.
Daarnaast beschikt deze verdieping over een royale overloop met extra bergruimte en de opstelling van de cv-ketel en de omvormer van de zonnepanelen. Ook zijn hier de aansluitingen voor de wasmachine aanwezig, wat zorgt voor een praktische indeling.
Tuin
De goed verzorgde, ruime achtertuin ligt op het zuidwesten en is bereikbaar via de schuifpui in de woonkamer of via de garage. De tuin is volledig omheind, biedt veel privacy en is in 2024 voorzien van een moderne overkapping met spotverlichting. De ligging op het zuidwesten staat garant voor optimaal profijt van de zonuren gedurende de dag. Er is een waterkraan aanwezig voor het aansluiten van bijvoorbeeld een tuinslang of terrasreiniger.
Ook de voortuin is netjes aangelegd en beschikt over de mogelijkheid tot het parkeren van drie auto’s. Zowel de voor- als achtertuin beschikken over een boom die zorgt voor extra sfeer en een stukje privacy.
Vanaf de oprit is directe toegang tot de garage, wat parkeren en het betreden van de woning bijzonder praktisch maakt.
Bijzonderheden
* Bitumen garagedak vervangen in 2023;
* Kunststof kozijnen (2023), allen met triple glas, met uitzondering van de zolderramen (2023) met dubbelglas;
* vrijwel alle ramen zijn in 2023 voorzien van uitneembare horren, schuifpui heeft een plissé-hordeur;
* nieuwe (aluminium) voordeur (2023), ook met triple glas;
* voorzien van rolluiken, elektrisch te bedienen;
* zolderramen zijn in 2023 voorzien van zonwering (roldoek aan buitenzijde);
* Meterkast vervangen door moderne groepenkast met aardlekautomaten in 2023;
* Nieuwe garagepoort geplaatst in 2023;
* Overkapping met spotverlichting geplaatst in 2024;
* Nieuwe laminaatvloer en plinten begane grond 2024;
* CV- ketel, huur, 2016, ca. € 37,66 per maand;
* Zonnepanelen, eigendom, 2023, 8 stuks, 3.200 WP vermogen;
* het dak aan de achterzijde is in 2024 voorzien van sneeuwstopper;
* Aanvaarding in overleg, op korte termijn mogelijk.
Tot slot:
* Deze verkoopinformatie is met de nodige zorgvuldigheid samengesteld. Hierbij zijn wij deels afhankelijk van informatie die wij van derden ontvangen. Aan onjuistheden en/of onvolkomenheden kunt u echter geen rechten ontlenen. Indien bepaalde informatie voor u van wezenlijk belang is dan adviseren wij u deze op juistheid te controleren. Onzerzijds wordt geen aansprakelijkheid aanvaardt voor enige onvolledigheid, onjuistheid of anderszins, dan wel de gevolgen daarvan. Alle opgegeven maten en oppervlakten zijn indicatief;
* Koper is te allen tijde gerechtigd om voor eigen rekening een bouwkundig onderzoek te (laten) verrichten, dan wel andere adviseurs te raadplegen teneinde een goed inzicht te verkrijgen in de staat van onderhoud of andere aspecten van de onroerende zaak. Koper dient bij het doen van een bod wel direct aan te geven of hij een dergelijk onderzoek wenst;
* Indien een CV-ketel en/of warmtevoorziening een huurtoestel is, dient koper deze overeenkomst over te nemen.
* De waarborgsom/bankgarantie is 10% van de koopsom. De koper dient deze 1 week na het vervallen van de ontbindende voorwaarden bij de desbetreffende notaris te deponeren;
* Ter bescherming van de belangen van zowel koper als verkoper, wordt uitdrukkelijk gesteld dat een koopovereenkomst met betrekking tot deze onroerende zaak eerst dan tot stand komt, nadat koper en verkoper de koopovereenkomst hebben getekend ("schriftelijkheidsvereiste").
Plattegronden
179632792_1594107_spaar_begane_grond_first_design_20251121_054ff5.jpg
179632792_1594107_spaar_eerste_verdiepi_first_design_20251121_22eb86.jpg
179632792_1594107_spaar_tweede_verdiepi_first_design_20251121_574dbc.jpg
Kadastrale kaart ingetekend-81.jpg