Beschrijving
In een rustige, geliefde straat in Amby ligt deze fijne halfvrijstaande woning met garage. De locatie is heerlijk centraal: op loopafstand van winkels, basisscholen, sportfaciliteiten en openbaar vervoer, en met snelle verbindingen richting Maastricht-centrum, MUMC+ en de uitvalswegen.
De woning biedt een royale leefruimte met een lichte woonkamer en een ruime leefkeuken die direct uitnodigt tot lange tafelmomenten. Met vier slaapkamers – en de mogelijkheid voor een vijfde – is dit een ideaal huis voor wie ruimte zoekt. Achter het huis ligt een verrassend groene, sfeervolle tuin met volop privacy, perfect voor rustige ochtenden of gezellige avonden buiten. Een complete, comfortabele gezinswoning op een topplek in Amby, waar je zó kunt binnenlopen én door kunt groeien.
Indeling
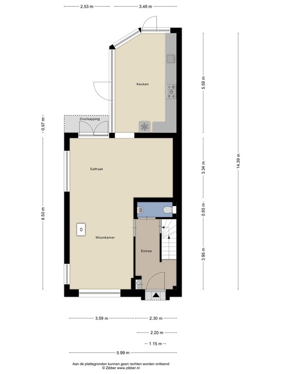
Bij binnenkomst valt direct de charmante hal op, afgewerkt met Portugese tegeltjes die de toon zetten voor de rest van het huis. Vanuit de hal zijn het modern afgewerkte toilet met zwevend closet en fonteintje, de kelder en de living bereikbaar.
De L-vormige woonkamer van circa 38 m² voelt licht en ruim aan, met een houten vloer (toplaag hout) die samen met de vloerverwarming voor aangename warmte zorgt. De houtkachel vormt een gezellig middelpunt voor de koudere maanden. Vanuit de woonkamer geven openslaande deuren toegang tot de groene, privacyrijke tuin. De paneeldeuren en de fraaie trapopgang versterken de authentieke sfeer.
Aansluitend ligt de leefkeuken van ruim 17 m², praktisch ingericht met een tegelvloer en een rechte keukenopstelling. Hier vind je een 6-pits kooktoestel met afzuiging, een vaatwasser, een SMEG-oven en een close-in boiler. De keuken kijkt prettig uit over de achtertuin, waardoor koken en wonen naadloos in elkaar overlopen.
Eerste verdieping
De fraaie trapopgang leidt naar de eerste verdieping, waar de overloop toegang geeft tot drie slaapkamers en de badkamer. Deze badkamer heeft een authentieke terrazzovloer en is voorzien van een wastafelmeubel en een bad-douchecombinatie. Hoewel functioneel, is modernisering wenselijk om het comfort en de uitstraling naar het niveau van vandaag te brengen. Naast de badkamer bevindt zich op deze verdieping een separate toiletruimte
.
De slaapkamer aan de voorzijde (circa 12 m²) beschikt over een balkon. Aan de tuinzijde liggen twee slaapkamers: een royale kamer van circa 16 m² en een derde kamer van circa 8 m², ideaal als kinderkamer, werkkamer of dressing.
Tweede verdieping
Via een vaste trap bereik je de tweede verdieping. Hier bevindt zich een ruime, lichte slaapkamer met een dakkapel aan de achterzijde van de woning. Daarnaast zijn er twee praktische bergingen én een aparte wasruimte, waar ook de cv-ketel (eigendom, bouwjaar 2011) is opgesteld. De combinatie van slaapruimte, wasfaciliteiten en extra opbergruimte maakt deze verdieping zeer functioneel.
Balkon
Aan de voorzijde van de woning is een balkon, bereikbaar vanaf een van de slaapkamers.
Tuin
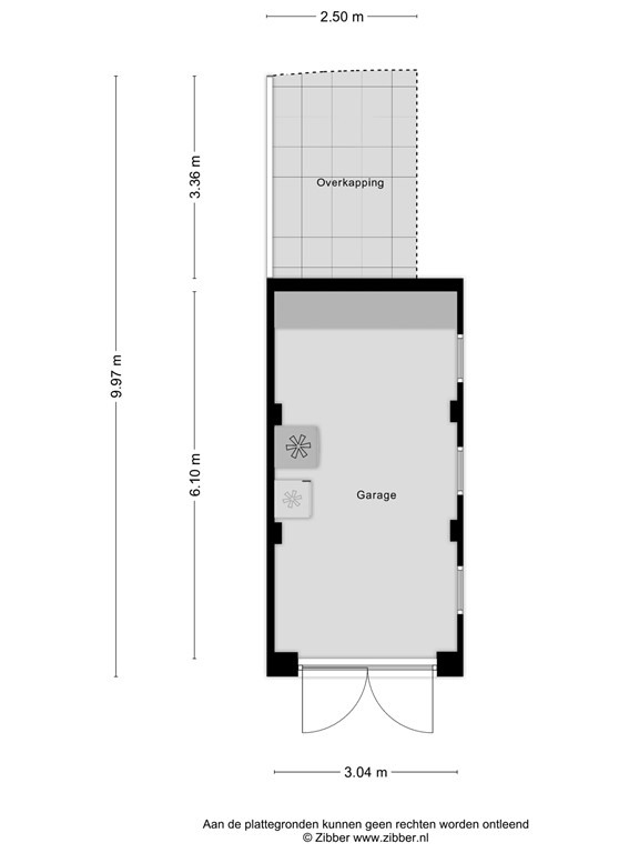
Achter de woning ligt een gezellige, sfeervolle tuin met veel groen en volop privacy. Het is een fijne plek om te ontspannen, te spelen of lange avonden buiten door te brengen. De tuin biedt bovendien toegang tot de garage met kap, ideaal voor opslag, hobby of het stallen van fietsen en tuinmateriaal.
Bijzonderheden
Bijzonderheden
• Hele woning voorzien van betonnen verdiepingsvloeren
• Energielabel C
• De buren hebben recht van overpad over de oprit van deze woning;
• Kunststof kozijnen met dubbel glas
• Gevelisolatie aangebracht in 2022
• Dak van de garage vernieuwd in 2021
• Dak van de woning deels geïsoleerd
• Volledige begane grond voorzien van vloerverwarming
• Aanbouw gerealiseerd in 2006
Tot slot:
* Deze verkoopinformatie is met de nodige zorgvuldigheid samengesteld. Hierbij zijn wij deels afhankelijk van informatie die wij van derden ontvangen. Aan onjuistheden en/of onvolkomenheden kunt u echter geen rechten ontlenen. Indien bepaalde informatie voor u van wezenlijk belang is dan adviseren wij u deze op juistheid te controleren. Onzerzijds wordt geen aansprakelijkheid aanvaardt voor enige onvolledigheid, onjuistheid of anderszins, dan wel de gevolgen daarvan. Alle opgegeven maten en oppervlakten zijn indicatief;
* Koper is te allen tijde gerechtigd om voor eigen rekening een bouwkundig onderzoek te (laten) verrichten, dan wel andere adviseurs te raadplegen teneinde een goed inzicht te verkrijgen in de staat van onderhoud of andere aspecten van de onroerende zaak. Koper dient bij het doen van een bod wel direct aan te geven of hij een dergelijk onderzoek wenst;
* Indien een CV-ketel en/of warmtevoorziening een huurtoestel is, dient koper deze overeenkomst over te nemen.
* De waarborgsom/bankgarantie is 10% van de koopsom. De koper dient deze 1 week na het vervallen van de ontbindende voorwaarden bij de desbetreffende notaris te deponeren;
* Ter bescherming van de belangen van zowel koper als verkoper, wordt uitdrukkelijk gesteld dat een koopovereenkomst met betrekking tot deze onroerende zaak eerst dan tot stand komt, nadat koper en verkoper de koopovereenkomst hebben getekend ("schriftelijkheidsvereiste").
Plattegronden
179775052_1594161_heuke_begane_grond_first_design_20251126_591414.jpg
179775052_1594161_heuke_eerste_verdiepi_first_design_20251126_9bc163.jpg
179775052_1594161_heuke_tweede_verdiepi_first_design_20251126_f70a88.jpg
179775052_1594161_heuke_kelder_first_design_20251126_cd1117.jpg
179775052_1594161_heuke_garage_first_design_20251126_873885.jpg
Kadastrale kaart ingetekend-79.jpg