Beschrijving
De woning ligt in het rustige en groene Itteren, een geliefd Maastrichts kerkdorp dat bekendstaat om zijn dorpse karakter en de nabijheid van de Maas. Op de Bannet woon je in een verkeersluwe straat met overwegend soortgelijke gezinswoningen.
Wat maakt deze instapklare woning bijzonder:
* 137 m² woonoppervlakte met een praktische, ruime indeling
* Royale woonkamer met veel lichtinval
* Luxe keuken met modern kookeiland en aansluitend bijkeuken
* Berging aan de voorzijde en een oprit voor meerdere auto’s
* Fijne tuin met overkapping en buitenberging
* Vier ruime slaapkamers
* Moderne, luxe badkamer
De omgeving biedt volop ruimte voor wandelen en fietsen langs de Maas, in het natuurgebied de Kleine Weerd en de omliggende weilanden — ideaal voor liefhebbers van rust, natuur en het buitenleven.
De dagelijkse voorzieningen bevinden zich in het nabijgelegen Borgharen en Maastricht-Noord, waar supermarkten, scholen en sportfaciliteiten binnen enkele minuten bereikbaar zijn. Dankzij de goede aansluiting op uitvalswegen en openbaar vervoer ben je bovendien zo in het centrum van Maastricht of onderweg richting A2/A79.
Indeling
Via de overdekte entree kom je binnen in de hal, voorzien van een vaste kast en een modern betegelde toiletruimte met zwevend toilet en fonteintje. Vanuit de hal bereik je de doorzonwoonkamer, waar grote ramen aan de voor- en achterzijde zorgen voor een prettige lichtinval. De woonkamer is afgewerkt met een eiken vloer en beschikt over een schuifpui die direct toegang biedt tot de achtertuin. Aan de achterzijde ligt de ruime eetkamer met een deur naar de tuin. Totaal oppervlakte van de woon- en eetkamer is ruim 40 m²!
De keuken ( ca. 12 m²) is uitgevoerd in hoekopstelling met een praktisch kookeiland en is voorzien van een tegelvloer. Dankzij de lichtkoepel valt hier extra daglicht binnen. De keuken beschikt over een 5-pits gaskooktoestel (waarvan één wokbrander), afzuiging, twee combi-magnetrons, een Amerikaans koelkast (ter overname), vaatwasser, kokend waterkraan (ter overname) en veel kastruimte.
Aansluitend ligt de bijkeuken met wasmachineaansluiting en de C-ketel. Ook hier zorgt een lichtkoepel voor extra daglicht.
Vanuit hier is de inpandig bereikbare berging/garage (totaal ca. 20 m²) toegankelijk, waar eveneens een lichtkoepel aanwezig is.
Diverse vaste kasten op verschillende plaatsen zorgen voor extra bergruimte.
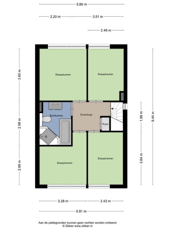
Eerste verdieping
De overloop biedt toegang tot vier slaapkamers. Aan de achterzijde liggen twee kamers van circa 12 m² en 9 m², beide met zicht op de achtertuin. Aan de voorzijde bevinden zich nog twee slaapkamers van circa 9 m² en 10 m². Alle kamers zijn netjes afgewerkt en voorzien van vloerbedekking.
De badkamer heeft een oppervlakte van ruim 6,5 m² en is ingericht met een ligbad, douchecabine, wastafelmeubel, toilet en een designradiator. Deze ruimte is verder voorzien van vloerverwarming.
Tuin
De onderhoudsvriendelijke achtertuin is gesitueerd op het westen en biedt volop privacy. Direct aan de woning bevindt zich een brede overkapping over de volledige gevelbreedte, ideaal voor een beschutte zitplek. Achterin de tuin staat een extra berging met een tweede overkapping, wat zorgt voor extra opbergruimte en een fijne, overdekte buitenplek.
Bijzonderheden
* Energielabel B;
* C-ketel, eigendom, 2024. Intergas;
* voorzien van kunststof kozijnen en dubbel glas;
* vloerisolatie aangebracht in 2021;
* de woning is voorzien van 2 airco's (2020) geïnstalleerd)
Tot slot:
* Deze verkoopinformatie is met de nodige zorgvuldigheid samengesteld. Hierbij zijn wij deels afhankelijk van informatie die wij van derden ontvangen. Aan onjuistheden en/of onvolkomenheden kunt u echter geen rechten ontlenen. Indien bepaalde informatie voor u van wezenlijk belang is dan adviseren wij u deze op juistheid te controleren. Onzerzijds wordt geen aansprakelijkheid aanvaardt voor enige onvolledigheid, onjuistheid of anderszins, dan wel de gevolgen daarvan. Alle opgegeven maten en oppervlakten zijn indicatief;
* Koper is te allen tijde gerechtigd om voor eigen rekening een bouwkundig onderzoek te (laten) verrichten, dan wel andere adviseurs te raadplegen teneinde een goed inzicht te verkrijgen in de staat van onderhoud of andere aspecten van de onroerende zaak. Koper dient bij het doen van een bod wel direct aan te geven of hij een dergelijk onderzoek wenst;
* Indien een CV-ketel en/of warmtevoorziening een huurtoestel is, dient koper deze overeenkomst over te nemen.
* De waarborgsom/bankgarantie is 10% van de koopsom. De koper dient deze 1 week na het vervallen van de ontbindende voorwaarden bij de desbetreffende notaris te deponeren;
* Ter bescherming van de belangen van zowel koper als verkoper, wordt uitdrukkelijk gesteld dat een koopovereenkomst met betrekking tot deze onroerende zaak eerst dan tot stand komt, nadat koper en verkoper de koopovereenkomst hebben getekend ("schriftelijkheidsvereiste").
Plattegronden
179485843_1593158_op_de_begane_grond_first_design_20251119_540d15.jpg
179485843_1593158_op_de_eerste_verdiepi_first_design_20251119_e72e27.jpg
179485843_1593158_op_de_berging_first_design_20251119_fa0c2c.jpg
kadastrale kaart ingetekend-103.jpg