Beschrijving
Gelegen in de geliefde en rustige wijk Amby staat deze moderne, halfvrijstaande woning op een fijn hoekperceel van ca. 271 m². Met een woonoppervlak van maar liefst ca. 127 m² biedt de woning volop ruimte voor het hele gezin. Het huis is uitstekend onderhouden, instapklaar en combineert comfort met een strakke afwerking. Binnen geniet je van een lichte en royale leefruimte, vier volwaardige slaapkamers en grote raampartijen met een hele fijne lichtinval.
Wat maakt deze woning bijzonder?
* Gelegen in een kindvriendelijke en geliefde woonwijk in Amby;
* Energielabel B:
* Ruim perceel van 271 m²;
* Vier slaapkamers;
* moderne badkamer;
* Garage én oprit.
Gelegen in een kindvriendelijke wijk nabij scholen, winkels, openbaar vervoer en uitvalswegen.
In de directe omgeving bevinden zich diverse voorzieningen, zoals basisscholen, supermarkten en openbaar vervoer. Het centrum van Maastricht is op korte afstand bereikbaar, evenals de uitvalswegen A2 en A79.
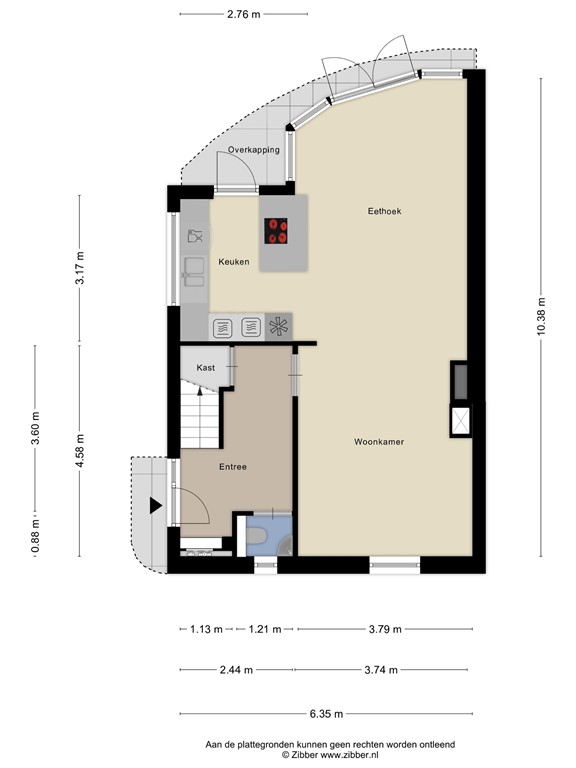
Indeling
We betreden de woning via een ruime, verzorgde hal die toegang biedt tot de meterkast, trapkast, het toilet met fonteintje en de lichte doorzonwoonkamer. De woonkamer van circa 37 m² kenmerkt zich door het prettige daglicht dat aan beide zijden binnenvalt en de warme, huiselijke sfeer dankzij onder andere de gezellige houtkachel.
Aan de achterzijde van de woning bevindt zich de moderne open keuken met een stijlvol kookeiland, die direct in verbinding staat met de woonkamer. Deze keuken is uitgerust met hoogwaardige inbouwapparatuur, waaronder een inductiekookplaat, afzuiging, vaatwasser, koelkast, oven en een combi-oven/magnetron. Een ideale ruimte voor wie houdt van koken en gezellig samenzijn. Via openslaande deuren in de woonkamer stap je direct de fraai aangelegde tuin in – een perfecte verlenging van je leefruimte, zeker op zonnige dagen.
Eerste verdieping
Via de beklede trap met sfeervolle verlichting komen we op de overloop van de eerste verdieping. Vanuit hier heb je toegang tot drie comfortabele slaapkamers en de moderne badkamer.
De eerste slaapkamer bevindt zich aan de voorzijde van de woning en is met circa 13,5 m² royaal van formaat. De tweede en derde slaapkamer liggen beide aan de achterzijde en bieden uitzicht over de achtertuin. Deze kamers zijn respectievelijk circa 14 m² en 9 m² groot.
De stijlvolle badkamer is modern afgewerkt en voorzien van een dubbele wastafel in meubel, een tweede toilet en een ruime inloopdouche met regendouche. Dankzij het raam is er volop natuurlijk daglicht én natuurlijke ventilatie.
Tweede verdieping
Via een vaste trap bereiken we de overloop op de tweede verdieping. Vanuit hier heb je toegang tot een vierde slaapkamer en een praktische berging.
De slaapkamer is voorzien van een wastafel en een dakkapel, wat zorgt voor extra ruimte en aangenaam daglicht. De slaapkamer heeft een oppervlakte van circa 11 m² en is daarmee uitstekend geschikt als slaapkamer, werkkamer of hobbyruimte. Extra bergruimte is slim weggewerkt achter de knieschotten.
Tuin
De woning beschikt over een voor-, zij- en achtertuin. De zonnige achtertuin is bereikbaar via de openslaande deuren in de woonkamer, een afgesloten zij-ingang naast de woning én via de garage, die zich aan de achterzijde van het perceel bevindt. Voor de garage ligt een eigen oprit, geschikt voor het parkeren van één auto.
De achtertuin is gelegen op het zuiden en volledig ingericht op comfort en ontspanning. Geniet hier van het verwarmde zwembad, het ruime terras of de gezellige zithoek onder een stijlvolle overkapping. Aan de voorzijde is nog een oprit met de mogelijkheid een tweede auto te parkeren.
Bijzonderheden
* Gehele woning kunststof kozijnen behalve buitendeur tuin en uitbouw houten kozijnen;
* Zonnepanelen, eigendom, 15 stuks;
* Laadpaal aanwezig;
* CV-ketel eigendom, 2016;
* Aanvaarding in overleg.
Tot slot:
* Deze verkoopinformatie is met de nodige zorgvuldigheid samengesteld. Hierbij zijn wij deels afhankelijk van informatie die wij van derden ontvangen. Aan onjuistheden en/of onvolkomenheden kunt u echter geen rechten ontlenen. Indien bepaalde informatie voor u van wezenlijk belang is dan adviseren wij u deze op juistheid te controleren. Onzerzijds wordt geen aansprakelijkheid aanvaardt voor enige onvolledigheid, onjuistheid of anderszins, dan wel de gevolgen daarvan. Alle opgegeven maten en oppervlakten zijn indicatief;
* Koper is te allen tijde gerechtigd om voor eigen rekening een bouwkundig onderzoek te (laten) verrichten, dan wel andere adviseurs te raadplegen teneinde een goed inzicht te verkrijgen in de staat van onderhoud of andere aspecten van de onroerende zaak. Koper dient bij het doen van een bod wel direct aan te geven of hij een dergelijk onderzoek wenst;
* Indien een CV-ketel en/of warmtevoorziening een huurtoestel is, dient koper deze overeenkomst over te nemen.
* De waarborgsom/bankgarantie is 10% van de koopsom. De koper dient deze 1 week na het vervallen van de ontbindende voorwaarden bij de desbetreffende notaris te deponeren;
* Ter bescherming van de belangen van zowel koper als verkoper, wordt uitdrukkelijk gesteld dat een koopovereenkomst met betrekking tot deze onroerende zaak eerst dan tot stand komt, nadat koper en verkoper de koopovereenkomst hebben getekend ("schriftelijkheidsvereiste").
Plattegronden
177559483_1584045_walbu_begane_grond_first_design_20251003_0059fe.jpg
177559483_1584045_walbu_eerste_verdiepi_first_design_20251002_99fab3.jpg
177559483_1584045_walbu_tweede_verdiepi_first_design_20251002_76f17b.jpg
177559483_1584045_walbu_overkapping_first_design_20251002_dbc2d3.jpg
177559483_1584045_walbu_berging_first_design_20251002_ec32db.jpg
177559483_1584045_walbu_garage_first_design_20251002_69f3dd.jpg
Kadastrale kaart ingetekend -10.jpg