Beschrijving
Instapklare hoekwoning op fijne locatie in Beek – met dubbele garage
In een rustige en geliefde woonwijk in Beek, maar toch centraal gelegen, vind je deze ruime hoekwoning met vier slaapkamers, dubbele garage, dubbele oprit en een gezellige serre met glaswanden. De woning ligt op korte afstand van supermarkten, scholen en het centrum van Beek. Bovendien zijn diverse losloopgebieden op loopafstand te bereiken. Ook de verbinding met Maastricht, Sittard en de uitvalswegen A2/A76 is ideaal.
Pluspunten van de woning:
* Royale woonkamer met halfopen keuken;
* Dubbele garage en dubbele oprit;
* Serre met glaswanden;
* Badkamer met ligbad én douche;
* Nette tuin met achteringang;
* Gelegen in een rustige, kindvriendelijke buurt.
Kortom: kom gerust een kijkje nemen en ervaar zelf het fijne gevoel dat deze woning je geeft!
Indeling
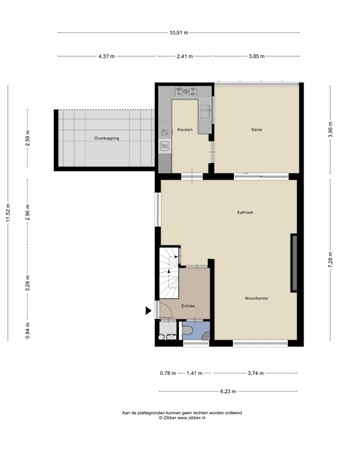
Via de entree kom je binnen in een nette hal met toegang tot de woonkamer, het zwevend toilet met fonteintje en de vernieuwde meterkast.
De gehele begane grond – met uitzondering van de serre – is voorzien van een lichte tegelvloer met comfortabele vloerverwarming. De doorzonwoonkamer is licht en ruim, met grote raampartijen aan zowel de voor- als achterzijde.
Aan de achterzijde biedt een schuifpui toegang tot de serre met glaswanden, een fijne plek om beschut te zitten en toch te genieten van het buitengevoel.
De keuken ligt eveneens aan de achterzijde van de woning en is opgesteld in een praktische U-vorm. Deze is uitgerust met diverse inbouwapparatuur, waaronder een koelkast, diepvries, vaatwasser, combimagnetron, 6-pits gaskookstel en een afzuigkap.
Eerste verdieping
Via de trapopgang bereiken we de overloop op de eerste verdieping. Vanuit hier zijn drie slaapkamers, de badkamer en een apart, tweede zwevend toilet bereikbaar.
De eerste slaapkamer bevindt zich aan de voorzijde van de woning en heeft een oppervlakte van circa 11 m². De overige twee slaapkamers liggen aan de achterzijde en meten respectievelijk circa 10,5 m² en 9,5 m². Alle kamers zijn netjes afgewerkt met een laminaatvloer en beschikken over voldoende lichtinval.
De badkamer is volledig betegeld en ingericht met twee wastafels, een douche en een ligbad.
Tweede verdieping
Via een vaste trap bereiken we de tweede verdieping, waar zich een mooie extra slaapkamer bevindt. Deze vierde slaapkamer heeft een oppervlakte van circa 15,5 m² en is volledig afgewerkt. Dankzij de twee grote dakramen is de kamer fijn licht, en de houten spanten geven het een karaktervolle uitstraling. Daarnaast is er op deze verdieping extra opbergruimte aanwezig.
Overige verdiepingen
De woning beschikt tevens over een kelder van circa 8 m², waarin de wasmachineaansluiting is gesitueerd. Daarnaast bevindt zich hier de opstelplaats voor de cv-ketel.
Tuin
Doordat de woning op een hoek ligt is er een voor-zij- en achtertuin.
De achtertuin is gelegen op het noordwesten en heeft een houten overkapping. De tuin is grotendeels betegeld, wat onderhoudsgemak biedt. Via de tuin is de dubbele garage met smeerput (ca. 33 m²) bereikbaar. Een achteringang geeft toegang tot de dubbele oprit.
Bijzonderheden
* Kunststof kozijnen, dubbelglas;
* Vloerverwarming begane grond;
* CV- ketel, eigendom, 2017;
* Zonnepanelen, eigendom, 2016, 22 stuks;
* Meterkast vernieuwd in 2021, 3-fasen stroom;
* Laadpaal aanwezig, ter overname;
* Aanvaarding in overleg.
Tot slot:
* Deze verkoopinformatie is met de nodige zorgvuldigheid samengesteld. Hierbij zijn wij deels afhankelijk van informatie die wij van derden ontvangen. Aan onjuistheden en/of onvolkomenheden kunt u echter geen rechten ontlenen. Indien bepaalde informatie voor u van wezenlijk belang is dan adviseren wij u deze op juistheid te controleren. Onzerzijds wordt geen aansprakelijkheid aanvaardt voor enige onvolledigheid, onjuistheid of anderszins, dan wel de gevolgen daarvan. Alle opgegeven maten en oppervlakten zijn indicatief;
* Koper is te allen tijde gerechtigd om voor eigen rekening een bouwkundig onderzoek te (laten) verrichten, dan wel andere adviseurs te raadplegen teneinde een goed inzicht te verkrijgen in de staat van onderhoud of andere aspecten van de onroerende zaak. Koper dient bij het doen van een bod wel direct aan te geven of hij een dergelijk onderzoek wenst;
* Indien een CV-ketel en/of warmtevoorziening een huurtoestel is, dient koper deze overeenkomst over te nemen.
* De waarborgsom/bankgarantie is 10% van de koopsom. De koper dient deze 1 week na het vervallen van de ontbindende voorwaarden bij de desbetreffende notaris te deponeren;
* Ter bescherming van de belangen van zowel koper als verkoper, wordt uitdrukkelijk gesteld dat een koopovereenkomst met betrekking tot deze onroerende zaak eerst dan tot stand komt, nadat koper en verkoper de koopovereenkomst hebben getekend ("schriftelijkheidsvereiste").