Beschrijving
Instapklare split-level tussenwoning in Brunssum – wijk Langenberg
In een prettige woonomgeving in de geliefde wijk Langenberg ligt deze fijne split-level tussenwoning. De speelse indeling met verschillende woonniveaus geeft de woning een bijzonder karakter en zorgt voor een verrassend ruimtelijk gevoel.
Wat maakt deze woning bijzonder?
* Energielabel A;
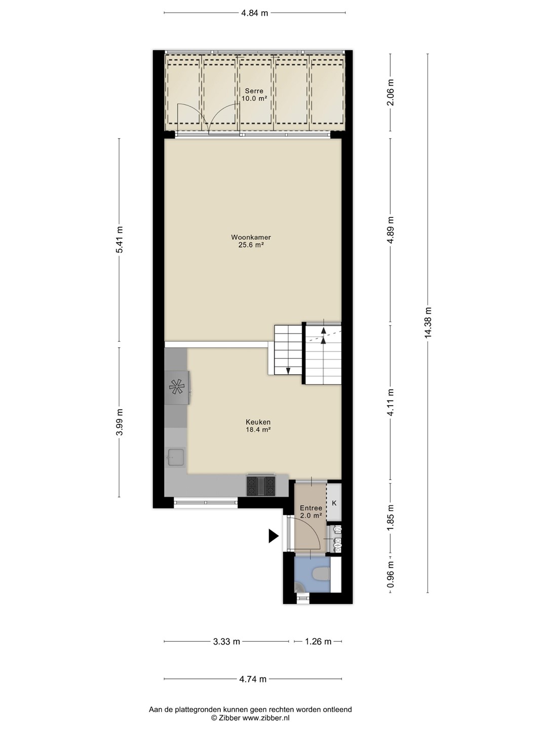
* Lichte woonkamer met serre;
* 3 slaapkamers, waarvan één met vide;
* onderste woonlaag, met wasruimte;
* Afsluitbare carport met aangrenzende buitenberging.
Op korte afstand van de woning bevinden zich diverse voorzieningen, waaronder een winkelcentrum voor de dagelijkse boodschappen, basisscholen en middelbare scholen. Ook sportvoorzieningen, speeltuinen en groene wandel- en recreatiegebieden zijn in de nabije omgeving aanwezig.
Daarnaast is de woning gunstig gelegen ten opzichte van diverse uitvalswegen met snelle verbindingen naar Heerlen, Sittard, Maastricht en Aken (Duitsland). Ook het openbaar vervoer is goed bereikbaar.
Kortom, een comfortabele en energiezuinige woning met een speelse indeling op een fijne locatie in Brunssum.
Indeling
We betreden de woning via de entree, waar zich het zwevend toilet met fonteintje en de meterkast bevinden. Vanuit hier lopen we door naar de woonkamer, die fungeert als spil tussen de verschillende niveaus. Vanuit de woonkamer is het lagere niveau bereikbaar, net als de hoger gelegen keuken.
woonlaag 1 – het lagere woonniveau
Op dit niveau ligt een ruime multifunctionele kamer van circa 16 m². Momenteel ingericht als wasruimte met opstelling voor wasmachine en droger, maar dankzij het aanwezige daglicht en de prettige afmetingen is deze ruimte eveneens geschikt als kantoor- of hobbykamer.
woonlaag 2 – het woonniveau
Terug op het hoofdniveau komen we in de gezellige woonkamer van circa 26 m². Deze prettige leefruimte staat via openslaande deuren in directe verbinding met de serre van circa 10 m², voorzien van schuifpuien en een kunststof dak. Een fijne, lichte plek waar het hele jaar door van het buitengevoel kan worden genoten.
woonlaag 3 – het hogere woonniveau
Via een korte trap bereiken we de moderne keuken in hoekopstelling. Deze keuken is voorzien van een tegelvloer, een granieten werkblad en kijkt uit over de voortuin. De aanwezige inbouwapparatuur omvat onder andere een oven, 6-pits gasfornuis, afzuigkap, luxe koelkast met ijsblokjesfunctie en een vaatwasser.
Eerste verdieping
Woonlaag 4 – de slaapverdieping aan de achterzijde
Vanaf de keuken leidt een trapopgang naar de overloop. Deze biedt toegang tot twee slaapkamers, beide gelegen aan de achterzijde van de woning. De kamers hebben een oppervlakte van circa 13,8 m² en 7,2 m² en zijn geschikt als respectievelijk hoofdslaapkamer en kinder- of werkkamer. De grootste slaapkamer is voorzien van een airco die tevens kan verwarmen.
Woonlaag 5 – badkamer, extra slaapkamer en vide
Een verdieping hoger komen we op Level 5. Hier bevinden zich de moderne badkamer, een praktische stookruimte/berging met de cv-installatie én een derde slaapkamer.
Deze slaapkamer heeft een oppervlakte van circa 11,3 m² en beschikt over een vaste open trap naar een speelse vide met daglicht. Deze vide fungeert als extra leefruimte en is ideaal als slaap- of werkplek.
De badkamer is volledig betegeld, voorzien van een raam voor natuurlijke ventilatie en daglicht, en uitgerust met een regendouche met glazen wand, een tweede zwevend toilet, een wastafelmeubel met spiegelkast en een designradiator.
Tweede verdieping
Boven de hoogste woonlaag bevindt zich nog een praktische vliering,
Tuin
De achtertuin ligt op het noordwesten en is ingericht met onderhoudsvriendelijk kunstgras. Hierdoor oogt zowel de serre als de tuin zelf het hele jaar door groen en verzorgd.
Via de tuin is de met een elektrische garagepoort afsluitbare carport bereikbaar. Deze is tevens vanaf de straat aan de achterzijde van de woning bereikbaar.
Tevens is hier een buitenberging van circa 8 m².
Bijzonderheden
* Grotendeels voorzien van hypoallergene vloerbedekking voor mensen met allergieën;
* Vloerisolatie d.m.v. dikke ondervloeren die geluiddempend en isolerend zijn;
* CV- ketel, 2019, eigendom;
* Zonnepanelen, 2017, 12 stuks, eigendom;
* meterkast vernieuwd met modern schakelmateriaal;
* carport is met aan elektrische poort afsluitbaar (ook op afstand te bedienen).
* Aanvaarding in overleg.
Tot slot:
* Deze verkoopinformatie is met de nodige zorgvuldigheid samengesteld. Hierbij zijn wij deels afhankelijk van informatie die wij van derden ontvangen. Aan onjuistheden en/of onvolkomenheden kunt u echter geen rechten ontlenen. Indien bepaalde informatie voor u van wezenlijk belang is dan adviseren wij u deze op juistheid te controleren. Onzerzijds wordt geen aansprakelijkheid aanvaardt voor enige onvolledigheid, onjuistheid of anderszins, dan wel de gevolgen daarvan. Alle opgegeven maten en oppervlakten zijn indicatief;
* Koper is te allen tijde gerechtigd om voor eigen rekening een bouwkundig onderzoek te (laten) verrichten, dan wel andere adviseurs te raadplegen teneinde een goed inzicht te verkrijgen in de staat van onderhoud of andere aspecten van de onroerende zaak. Koper dient bij het doen van een bod wel direct aan te geven of hij een dergelijk onderzoek wenst;
* Indien een CV-ketel en/of warmtevoorziening een huurtoestel is, dient koper deze overeenkomst over te nemen.
* De waarborgsom/bankgarantie is 10% van de koopsom. De koper dient deze 1 week na het vervallen van de ontbindende voorwaarden bij de desbetreffende notaris te deponeren;
* Ter bescherming van de belangen van zowel koper als verkoper, wordt uitdrukkelijk gesteld dat een koopovereenkomst met betrekking tot deze onroerende zaak eerst dan tot stand komt, nadat koper en verkoper de koopovereenkomst hebben getekend ("schriftelijkheidsvereiste").