Beschrijving
Wat een topwoning: deze luxe afgewerkte villa op Hoogveld. Deze vrijstaande woning is gebouwd in 2022 en is gebouwd conform BENG: volledig gasloos en bijna energieneutraal.
In de geliefde nieuwbouwwijk Hoogveld in Heerlen ligt deze prachtige, volledig instapklare vrijstaande woning met energielabel A+++. Een moderne en duurzame gezinswoning waar comfort en luxe centraal staan.
Wat maakt deze woning bijzonder?
* Volledig instapklaar en strak afgewerkt;
* Luxe keuken met kookeiland;
* Moderne, luxe badkamer
* Garage;
* 3 slaapkamers;
* Energielabel A+++;
Gelegen in een rustige, kindvriendelijke wijk met scholen, winkels, sportvoorzieningen en uitvalswegen richting Maastricht, Eindhoven en Aken binnen handbereik.
Duurzaam, comfortabel en helemaal klaar voor de toekomst, een woning die je zó kunt betrekken.
Indeling
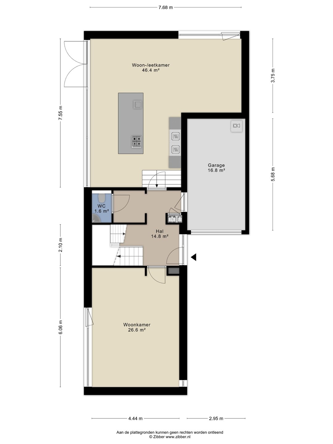
Via de hal betreden we de woning, waar de hoogwaardige afwerking direct opvalt. De stijlvolle lichtgrijze tegelvloer en elegante bordestrap geven de entree een moderne en verzorgde uitstraling. Onder de trap is praktische bergruimte gerealiseerd en er is een fraaie plek voor de garderobe. Vanuit de hal zijn het moderne, zwevende toilet met fonteintje, de meterkast, de de keuken met eetkamer, woonkamer en garage bereikbaar.
De garage is, net als de rest van de woning, voorzien van vloerverwarming en beschikt tevens over de opstelplaats voor de wasmachine.
Via een subtiel hoogteverschil wordt de ruime leefkeuken met eetkamer bereikt, wat zorgt voor een speelse en ruimtelijke indeling met een eigen sfeerbeleving. Met een totaaloppervlakte van ca. 45 m² biedt deze leefruimte volop plaats om te koken, tafelen en samen te komen. De moderne keuken vormt een echte eyecatcher dankzij het stijlvolle kookeiland en de royale hoeveelheid opbergruimte. De keuken is uitgerust met luxe inbouwapparatuur, waaronder een Bora kookplaat, vaatwasser, koelkast, combi-stoomoven en een combi oven/magnetron. Daarnaast zorgen een Quooker met bruisend water en airconditioning voor extra comfort. De aangrenzende eetkamer is ruim opgezet en biedt dankzij de grote raampartijen een prachtig uitzicht over de achtertuin.
Aan de voorzijde van de woning bevindt zich de sfeervolle woonkamer met een oppervlakte van ca. 27 m², afgewerkt met een warme PVC visgraatvloer met stijlvolle randafwerking. Tevens is hier een praktische werkplek gecreëerd, ideaal voor thuiswerken. De ruimte straalt rust, luxe en comfort uit en sluit naadloos aan bij de strakke, moderne afwerking van de gehele woning.
Eerste verdieping
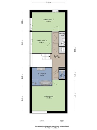
Via de trapopgang bereiken we de ruime overloop op de eerste verdieping. Vanuit hier zijn drie slaapkamers, de badkamer, een apart toilet en de technische ruimte bereikbaar. In de technische ruimte bevinden zich de warmtepomp en het WTW-systeem.
Over vrijwel de gehele verdieping loopt dezelfde PVC-vloer door, wat zorgt voor een rustige en uniforme uitstraling. De eerste slaapkamer, gelegen aan de voorzijde van de woning, heeft een royale oppervlakte van ca. 23 m². De tweede en derde slaapkamer bevinden zich aan de achterzijde en hebben een oppervlakte van respectievelijk ruim 10 m² en ruim 15 m². Vanuit deze kamers geniet je van een prettig uitzicht over de tuin. Alle slaapkamers zijn strak en modern afgewerkt en sluiten naadloos aan bij de hoogwaardige afwerking van de rest van de woning.
De moderne badkamer is uitgevoerd in neutrale tinten en hoogwaardig afgewerkt. De ruimte is voorzien van een wastafelmeubel met dubbele kraan en een stijlvolle visgraattegel als accentwand, een inloopdouche en ligbad.
Het half betegelde, zwevende toilet met fonteintje is separaat gesitueerd.
Tuin
De woning beschikt over een tuin rondom met een ruime oprit en directe toegang tot de garage. De tuin is deels voorzien van gras en deels betegeld, waardoor een goede balans ontstaat tussen een groene uitstraling en onderhoudsgemak. De zij- en achtertuin zijn bereikbaar via een poort aan de voorzijde van de woning.
De achtertuin, gelegen op het noordoosten, is toegankelijk via de keuken/eetkamer door middel van openslaande deuren en beschikt over een prettig terras. De grootste en meest gebruikte tuin bevindt zich echter aan de zijkant van de woning. Deze ligt op het zuidwesten, waardoor je hier optimaal van de zon en het buitenleven kunt genieten.
Bijzonderheden
* Volledig geïsoleerde woning;
* Houten kozijnen, HR+++ beglazing;
* WTW- systeem, warmtepomp, elektrische boiler, airconditioning eigendom, 2022;
* Voorzien van vloerverwarming gehele woning;
* Zonnepanelen, 22 stuks, eigendom, 2022;
* Vrij uitzicht aan de achterzijde van de woning, hier kan in de toekomst gebouwd worden.
* Aanvaarding in overleg.
Tot slot:
* Deze verkoopinformatie is met de nodige zorgvuldigheid samengesteld. Hierbij zijn wij deels afhankelijk van informatie die wij van derden ontvangen. Aan onjuistheden en/of onvolkomenheden kunt u echter geen rechten ontlenen. Indien bepaalde informatie voor u van wezenlijk belang is dan adviseren wij u deze op juistheid te controleren. Onzerzijds wordt geen aansprakelijkheid aanvaardt voor enige onvolledigheid, onjuistheid of anderszins, dan wel de gevolgen daarvan. Alle opgegeven maten en oppervlakten zijn indicatief;
* Koper is te allen tijde gerechtigd om voor eigen rekening een bouwkundig onderzoek te (laten) verrichten, dan wel andere adviseurs te raadplegen teneinde een goed inzicht te verkrijgen in de staat van onderhoud of andere aspecten van de onroerende zaak. Koper dient bij het doen van een bod wel direct aan te geven of hij een dergelijk onderzoek wenst;
* Indien een CV-ketel en/of warmtevoorziening een huurtoestel is, dient koper deze overeenkomst over te nemen.
* De waarborgsom/bankgarantie is 10% van de koopsom. De koper dient deze 1 week na het vervallen van de ontbindende voorwaarden bij de desbetreffende notaris te deponeren;
* Ter bescherming van de belangen van zowel koper als verkoper, wordt uitdrukkelijk gesteld dat een koopovereenkomst met betrekking tot deze onroerende zaak eerst dan tot stand komt, nadat koper en verkoper de koopovereenkomst hebben getekend ("schriftelijkheidsvereiste").