Beschrijving
Gelegen op een rustige, groene locatie in het Molenbergpark in Heerlen bevindt zich deze ruime en instapklare twee-onder-een-kapwoning. De woning biedt volop leefruimte en praktische voorzieningen en is ideaal voor gezinnen of wie comfortabel wil wonen met extra ruimte.
Wat maakt deze woning bijzonder?
- Woonoppervlakte ca. 179 m²;
* Perceel ca. 281 m²;
* Energielabel B;
* 4 slaapkamers;
* Oprit, carport en garage;
* Praktische kelder.
In de directe omgeving bevinden zich scholen, winkels, openbaar vervoer, groenvoorzieningen en uitvalswegen, wat zorgt voor een prettige en goed bereikbare woonomgeving.
Indeling
We betreden de woning via de zeer ruime entree, die direct een prettig gevoel van ruimte geeft. Hier bevindt zich een mooie vaste kast voor de garderobe. Vanuit de hal zijn het moderne, zwevende toilet met fonteintje en de woonkamer bereikbaar. Opvallend is de sfeervolle tegelvloer, die grotendeels over de begane grond is doorgelegd.
De ruime woonkamer kenmerkt zich door veel lichtinval dankzij de grote raampartijen aan zowel de voor- als achterzijde. In combinatie met de aanbouw ontstaat een fijne leefruimte van ca. 59 m². Via de aanbouw is de achtertuin bereikbaar middels een schuifpui.
Aansluitend aan de woonkamer bevindt zich de open keuken, voorzien van diverse inbouwapparatuur, waaronder een bordenwarmer, oven, koelkast, vaatwasser, keramische kookplaat en afzuigkap. Vanuit de keuken is eveneens toegang tot de achtertuin en via een raampartij is er uitzicht over de aanbouw.
Eerste verdieping
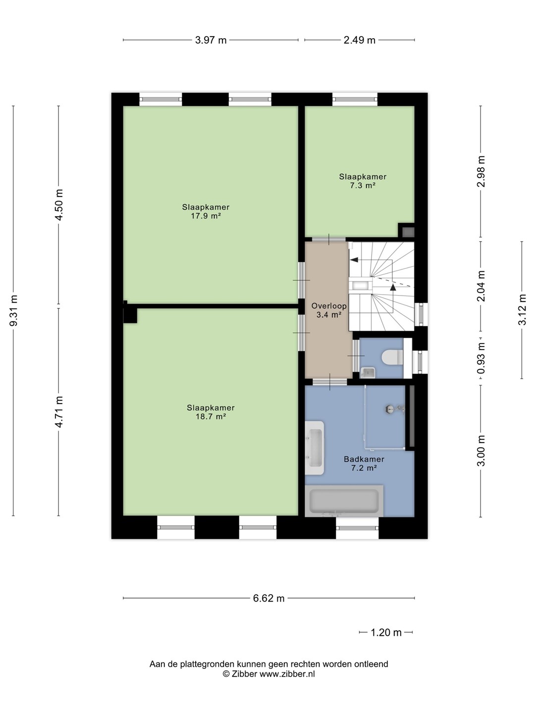
We lopen verder naar de eerste verdieping, waar de overloop toegang biedt tot drie slaapkamers, de badkamer en een apart toilet.
De eerste slaapkamer, gelegen aan de voorzijde van de woning, heeft een oppervlakte van bijna 19 m². De tweede en derde slaapkamer bevinden zich aan de achterzijde en hebben een oppervlakte van ca. 18 m² en ruim 7 m². Alle slaapkamers zijn modern en strak afgewerkt, waardoor ze direct instapklaar zijn.
De moderne badkamer van ca. 7,2 m² is van alle gemakken voorzien. Hier kun je kiezen voor een snelle douche in de inloopdouche met glazen wand, of genieten van een ontspannen bad in het fraai afgewerkte ligbad. Daarnaast is de badkamer uitgerust met een dubbele wastafel en een groot raamkozijn, dat zorgt voor veel daglicht en natuurlijke ventilatie. Het aparte tweede toilet op deze verdieping is eveneens modern afgewerkt, volledig in dezelfde stijl als de badkamer, en voorzien van een fonteintje en raam voor licht en ventilatie.
Tweede verdieping
Via een vaste trap lopen we verder naar de tweede verdieping. Hier geeft de overloop toegang tot de vierde slaapkamer en een extra berging.
De vierde slaapkamer is zeer ruim, ruim 21 m², en beschikt over een dakkapel met uitzicht op de achtertuin. Daarnaast is er een aparte berging van ca. 4,6 m², waarin de opstelplaats voor de cv-ketel is gesitueerd.
Overige verdiepingen
Via een trap in de woonkamer is de kelder bereikbaar, die extra opslagruimte en een praktische wasruimte biedt.
Tuin
De garage is bereikbaar via de voortuin met openslaande deuren en tevens via de achtertuin. De garage heeft een oppervlakte van ca. 16 m². De achtertuin is goed onderhouden en biedt een fijne combinatie van terras en gazon. Gelegen op het noordwesten, geniet je hier van middag- en avondzon.
Bijzonderheden
* Spouwmuurisolatie, 2020, HR+++ neopixels;
* Volledig voorzien van dakisolatie;
* Eerste en tweede verdieping kunststof kozijnen met dubbelglas;
* Begane grond deels houten kozijnen, deels aluminium en deels kunststof kozijnen met deels dubbel, deels HR++ glas.
* CV- ketel, eigendom, 2020;
* Zonnepanelen, eigendom, 12 stuks, 2023;
* Meterkast vernieuwd in 2022;
* Aanvaarding in overleg.
Tot slot:
* Deze verkoopinformatie is met de nodige zorgvuldigheid samengesteld. Hierbij zijn wij deels afhankelijk van informatie die wij van derden ontvangen. Aan onjuistheden en/of onvolkomenheden kunt u echter geen rechten ontlenen. Indien bepaalde informatie voor u van wezenlijk belang is dan adviseren wij u deze op juistheid te controleren. Onzerzijds wordt geen aansprakelijkheid aanvaardt voor enige onvolledigheid, onjuistheid of anderszins, dan wel de gevolgen daarvan. Alle opgegeven maten en oppervlakten zijn indicatief;
* Koper is te allen tijde gerechtigd om voor eigen rekening een bouwkundig onderzoek te (laten) verrichten, dan wel andere adviseurs te raadplegen teneinde een goed inzicht te verkrijgen in de staat van onderhoud of andere aspecten van de onroerende zaak. Koper dient bij het doen van een bod wel direct aan te geven of hij een dergelijk onderzoek wenst;
* Indien een CV-ketel en/of warmtevoorziening een huurtoestel is, dient koper deze overeenkomst over te nemen.
* De waarborgsom/bankgarantie is 10% van de koopsom. De koper dient deze 1 week na het vervallen van de ontbindende voorwaarden bij de desbetreffende notaris te deponeren;
* Ter bescherming van de belangen van zowel koper als verkoper, wordt uitdrukkelijk gesteld dat een koopovereenkomst met betrekking tot deze onroerende zaak eerst dan tot stand komt, nadat koper en verkoper de koopovereenkomst hebben getekend ("schriftelijkheidsvereiste").