Beschrijving
Instapklaar 2-slaapkamer appartement met terras en eigen parkeerplaats
Ben je op zoek naar een instapklaar appartement met alle gemakken op de begane grond? Dan is dit modern afgewerkte appartement precies wat je zoekt!
Het appartement is in 2020 volledig gerenoveerd en biedt niet alleen comfortabele leefruimte, maar ook praktische voorzieningen die het woongenot verhogen. De woning is gelegen aan een doorgaande weg, wat zorgt voor een goede bereikbaarheid en een levendige omgeving.
Wat maakt dit appartement bijzonder:
* Twee slaapkamers;
* Inpandige berging met wasruimte én een berging in de kelder;
* Eigen terras (ca. 7m²);
* Privéparkeerplaats direct bij de woning;
* Gelegen op de begane grond.
De woning ligt in de wijk Heerlerbaan, met diverse winkels, scholen en openbaar vervoer op korte afstand. Dankzij de gunstige ligging ten opzichte van de A76, N281 en A79 zijn steden als Maastricht, Aken en Eindhoven uitstekend bereikbaar.
Interesse? Neem gerust contact met ons op voor het plannen van een bezichtiging.
Indeling
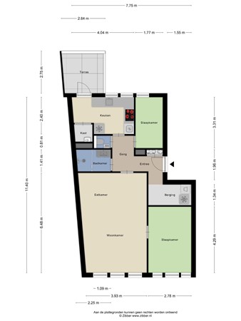
Bij binnenkomst stap je in de hal met tegelvoer, van waaruit vrijwel alle ruimtes in de woning direct toegankelijk zijn. Vanuit de hal bereik je de woonkamer, keuken, badkamer, één van de slaapkamers, het zwevend toilet met fonteintje, de meterkast en de inpandige berging met wasruimte.
De woonkamer is gelegen aan de voorzijde van de woning en biedt uitzicht op de straat. De ruimte is sfeervol afgewerkt met een prachtige authentieke tussendeur voorzien van glas-in-lood en een warme mozaïekparketvloer, wat zorgt voor karakter en een tijdloze uitstraling. De woonkamer heeft een oppervlakte van ca. 27 m² en biedt volop ruimte voor een comfortabele zithoek en een gezellige eethoek. Vanuit de woonkamer is de tweede slaapkamer bereikbaar. De slaapkamers hebben een oppervlakte van ca. 12 m² en ca. 6 m². Eén slaapkamer ligt aan de voorzijde, de andere aan de achterzijde van de woning. Ideaal voor gebruik als hoofdslaapkamer, logeerkamer of thuiswerkplek. Beide slaapkamers zijn voorzien van dezelfde mozaiïek parketvloer.
De moderne keuken is uitgerust met diverse inbouwapparatuur, waaronder een inductiekookplaat, afzuigkap, vaatwasser, koelkast en een combimagnetron. Vanuit de keuken is er directe toegang tot het terras aan de achterzijde. In de keuken bevindt zich tevens een aparte kast met de opstelplaats van de cv-ketel – netjes uit het zicht, maar goed bereikbaar. De badkamer is volledig betegeld en voorzien van een inloopdouche, wastafelmeubel en een radiator. Het separate toilet is in dezelfde moderne stijl afgewerkt.
Daarnaast beschikt het appartement over een extra (separate) berging in de kelder van bijna 7 m² – ideaal voor het opbergen van fietsen, gereedschap of seizoensspullen. Via het terras is bovendien de eigen parkeerplaats bereikbaar.
Bijzonderheden
* VvE-bijdrage per maand ca. € 152,79, inclusief water;
* Jaarlijkse bijdrage reservefonds ca. € 511,79 (termijnbetalingen mogelijk);
* Kunststof kozijnen m.u.v. achterdeur (hout);
* Grotendeels voorzien van HR++- beglazing;
* CV- ketel, eigendom, 2019;
* Combi-oven en afzuigkap vernieuwd in 2025;
* Gedeeltelijk voorzien van rolluiken;
* Aanvaarding mogelijk vanaf half december 2025.
Tot slot:
* Deze verkoopinformatie is met de nodige zorgvuldigheid samengesteld. Hierbij zijn wij deels afhankelijk van informatie die wij van derden ontvangen. Aan onjuistheden en/of onvolkomenheden kunt u echter geen rechten ontlenen. Indien bepaalde informatie voor u van wezenlijk belang is dan adviseren wij u deze op juistheid te controleren. Onzerzijds wordt geen aansprakelijkheid aanvaardt voor enige onvolledigheid, onjuistheid of anderszins, dan wel de gevolgen daarvan. Alle opgegeven maten en oppervlakten zijn indicatief;
* Koper is te allen tijde gerechtigd om voor eigen rekening een bouwkundig onderzoek te (laten) verrichten, dan wel andere adviseurs te raadplegen teneinde een goed inzicht te verkrijgen in de staat van onderhoud of andere aspecten van de onroerende zaak. Koper dient bij het doen van een bod wel direct aan te geven of hij een dergelijk onderzoek wenst;
* Indien een CV-ketel en/of warmtevoorziening een huurtoestel is, dient koper deze overeenkomst over te nemen.
* De waarborgsom/bankgarantie is 10% van de koopsom. De koper dient deze 1 week na het vervallen van de ontbindende voorwaarden bij de desbetreffende notaris te deponeren;
* Ter bescherming van de belangen van zowel koper als verkoper, wordt uitdrukkelijk gesteld dat een koopovereenkomst met betrekking tot deze onroerende zaak eerst dan tot stand komt, nadat koper en verkoper de koopovereenkomst hebben getekend ("schriftelijkheidsvereiste").