Beschrijving
Volledig gerenoveerd en instapklaar herenhuis met aanbouw op toplocatie nabij Heerlen Centrum
Op een uitstekende locatie, op loopafstand van het centrum van Heerlen, ligt dit prachtige jaren ’30 herenhuis. De woning is volledig gerenoveerd en combineert moderne comfort met sfeervolle, authentieke details. Een stijlvol en warm huis waar je zó in kunt trekken.
Wat maakt deze woning bijzonder?
* Energielabel C;
* Woonoppervlakte ca. 169 m²;
* Volledig afgewerkt en instapklaar;
* Moderne keuken;
* Twee badkamers;
* Vier ruime slaapkamers, waarvan één met balkon;
* Praktische kelder;
* Zonnige achtertuin op het zuidwesten.
Kortom: een verrassend ruime en instapklare woning op een ideale locatie. Perfect voor wie op zoek is naar comfort, karakter en het stadsleven binnen handbereik.
Indeling
We betreden de woning via de ruime hal, waar direct de hoogwaardige afwerking opvalt. Het hoge plafond, de karakteristieke tegelvloer, de authentieke trap en de paneeldeuren geven de woning direct een sfeervolle en stijlvolle uitstraling. Vanuit de hal zijn de woonkamer, keuken, kelder, meterkast en het moderne toilet met fonteintje bereikbaar.
De woonkamer is fraai afgewerkt met een strakke volhouten vloer en glad stucwerk. Dankzij de aanbouw beschikt deze ruimte over een royale woonoppervlakte van circa 39,5 m². De grote raampartijen aan zowel de voor- als achterzijde zorgen voor een prettige lichtinval. Via de schuifpui is er directe toegang tot de achtertuin.
Aansluitend bereiken we de keuken, waar de stijlvolle tegelvloer vanuit de hal naadloos doorloopt. De moderne keuken (2021) is compleet uitgerust met een inductiekookplaat, afzuigkap, vaatwasser, combi-oven/magnetron, koelkast en vriezer.
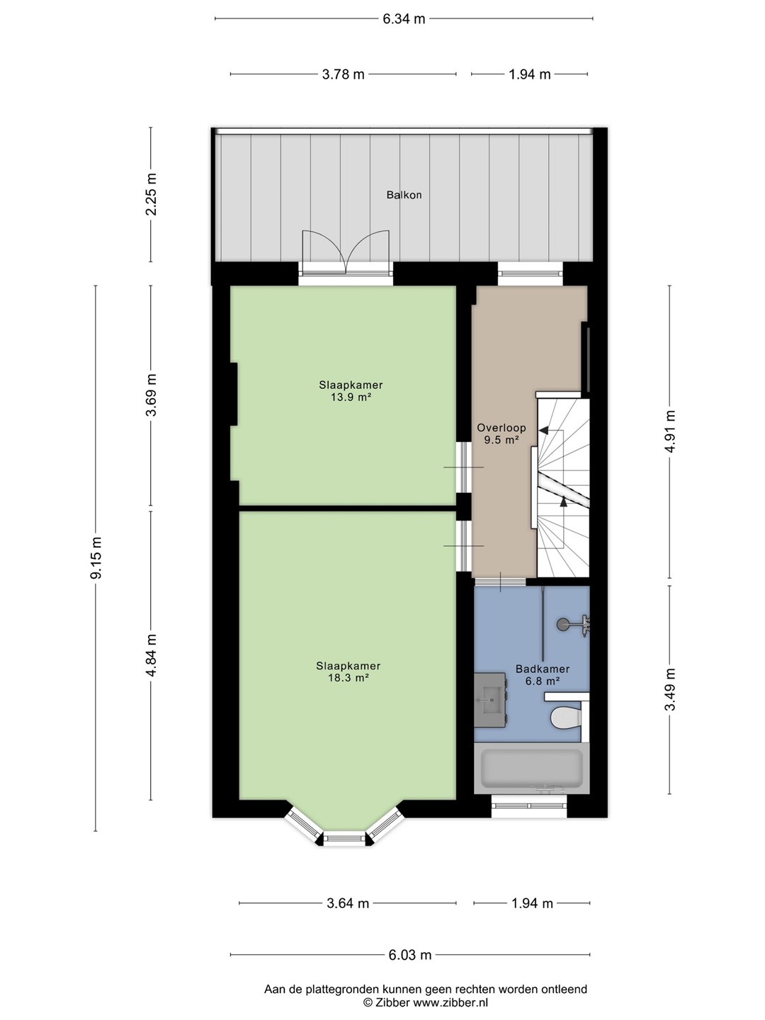
Eerste verdieping
Via de prachtige trapopgang komen we op de overloop van de eerste verdieping. Vanaf hier is er toegang tot twee slaapkamers en de badkamer. De grote raampartij op de overloop zorgt ook hier voor een prettige en natuurlijke lichtinval.
De eerste slaapkamer (ca. 18 m²) ligt aan de voorzijde van de woning en brengt veel sfeer dankzij de bijzondere muurafwerking met houten constructie, de karakteristieke erker en de mooie parketvloer.
De tweede slaapkamer (ca. 14 m²) bevindt zich aan de achterzijde en geeft via openslaande deuren toegang tot een royaal balkon van ca. 14 m² met een houten vlonder. Hier geniet je van een prachtig uitzicht over de achtertuin.
De moderne badkamer, gelegen aan de voorzijde van de woning, is van alle gemakken voorzien. Ontspannen in het ligbad of liever een frisse douche in de inloopdouche? Het kan hier allebei. Daarnaast beschikt de badkamer over een tweede toilet en een stijlvol wastafelmeubel.
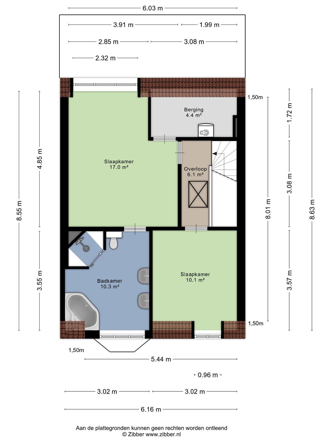
Tweede verdieping
Via een vaste trap lopen we verder naar de tweede verdieping. Vanaf de overloop zijn hier nog twee slaapkamers bereikbaar. Tevens is via de overloop de zolder toegankelijk middels een vlizotrap.
De derde slaapkamer is gelegen aan de achterzijde en heeft een royale oppervlakte van circa 17 m², voorzien van een dakkapel. Vanuit deze kamer is zowel de berging met opstelplaats voor de cv-ketel als de tweede badkamer bereikbaar. Deze ruime badkamer (ruim 10 m²) is compleet uitgerust met een ligbad, inloopdouche, een derde toilet en een dubbele wastafel. Daarnaast biedt de badkamer uitzicht over de straatzijde. De vierde slaapkamer bevindt zich aan de voorzijde van de woning en heeft een oppervlakte van circa 10 m², eveneens voorzien van een dakkapel.
Overige verdiepingen
De zolder (ca. 15 m²) is bereikbaar via een vlizotrap en biedt extra bergruimte.
De kelder (ruim 13 m²) is voorzien van een nette tegelvloer en fungeert als opstelplaats voor de wasmachine, met daarnaast volop extra opbergmogelijkheden.
Tuin
De gezellige achtertuin is gelegen op het zuidwesten en is bereikbaar via zowel de keuken als de schuifpui in de woonkamer. De tuin is volledig omheind, wat zorgt voor veel privacy, en is ingericht met een terras en een gedeelte gazon. Daarnaast is er een metalen berging aanwezig (ca. 3,6 m²), welke in overleg met de verkoper kan worden overgenomen. Een achterom is niet aanwezig.
Bijzonderheden
* Deels voorzien van vloerisolatie, steenwol en glaswol;
* Deels kunststoffen, deels houten kozijnen met dubbelglas;
* Authentieke voordeur met enkelglas;
* Meterkast vernieuwd, 3-fasen stroom;
* CV- ketel, eigendom, 2021;
* Buitenberging (metaal) ca. 3,6 m², ter overname;
* Geen achteringang aanwezig;
* Parkeervergunning vereist ca. € 159,60 per vergunning per jaar, maximaal 2 per huishouden toegestaan;
* Aanvaarding in overleg.
Tot slot:
* Deze verkoopinformatie is met de nodige zorgvuldigheid samengesteld. Hierbij zijn wij deels afhankelijk van informatie die wij van derden ontvangen. Aan onjuistheden en/of onvolkomenheden kunt u echter geen rechten ontlenen. Indien bepaalde informatie voor u van wezenlijk belang is dan adviseren wij u deze op juistheid te controleren. Onzerzijds wordt geen aansprakelijkheid aanvaardt voor enige onvolledigheid, onjuistheid of anderszins, dan wel de gevolgen daarvan. Alle opgegeven maten en oppervlakten zijn indicatief;
* Koper is te allen tijde gerechtigd om voor eigen rekening een bouwkundig onderzoek te (laten) verrichten, dan wel andere adviseurs te raadplegen teneinde een goed inzicht te verkrijgen in de staat van onderhoud of andere aspecten van de onroerende zaak. Koper dient bij het doen van een bod wel direct aan te geven of hij een dergelijk onderzoek wenst;
* Indien een CV-ketel en/of warmtevoorziening een huurtoestel is, dient koper deze overeenkomst over te nemen.
* De waarborgsom/bankgarantie is 10% van de koopsom. De koper dient deze 1 week na het vervallen van de ontbindende voorwaarden bij de desbetreffende notaris te deponeren;
* Ter bescherming van de belangen van zowel koper als verkoper, wordt uitdrukkelijk gesteld dat een koopovereenkomst met betrekking tot deze onroerende zaak eerst dan tot stand komt, nadat koper en verkoper de koopovereenkomst hebben getekend ("schriftelijkheidsvereiste").