Beschrijving
Deze jonge halfvrijstaande woning uit 1993 is helemaal instapklaar en voelt direct comfortabel dankzij de uitstekende isolatie van vloer, spouw én dak. Met energielabel A woon je hier niet alleen prettig, maar ook energiezuinig. De drie slaapkamers en de optie voor een vierde ruimte maken het huis ideaal voor een gezin, een thuiswerkplek of een hobbykamer die eindelijk écht past. Alles ligt in de rustige en geliefde wijk (Nieuw) Husken in Heerlen, een fijne woonomgeving met een vriendelijke sfeer.
Pluspunten:
• Energielabel A;
• Instapklaar en netjes onderhouden;
• Vloer-, spouw- en dakisolatie;
• Bouwjaar 1993;
• Gelegen in de geliefde wijk (Nieuw) Husken op fietsafstand van centrum Heerlen;
• Drie slaapkamers met mogelijkheid tot een vierde;
• Tuin, oprit, garage én tuinhuis.
Nieuwsgierig?
Plan gerust een bezichtiging en laat je verrassen!
Indeling
Via de entree bereiken we de hal met toegang tot de woonkamer. Verder zijn hier de, meterkast en het moderne zwevend toilet met fonteintje. De woonkamer vormt direct een warm welkom: een ruime en lichte leefruimte van ca. 36 m² met een keurige marmeren tegelvloer en een prettig lichtinval. Dankzij de ruime opzet kun je hier eenvoudig een comfortabele zithoek en eetgedeelte creëren. Vanuit de woonkamer is bovendien zowel de achtertuin.
Aan de tuinzijde is de moderne keuken in hoekopstelling, stijlvol afgewerkt met een granieten aanrechtblad en voorzien van een inductiekookplaat, afzuiging, vaatwasser, koelkast., combi-ovenmagnetron en een handig centraal keukenblok voor extra opbergruimte.
Eerste verdieping
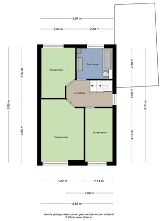
Via de trapopgang komen we op de overloop van de eerste verdieping, die toegang biedt tot drie slaapkamers en de badkamer.
Aan de voorzijde van de woning bevinden zich de eerste en tweede slaapkamer, met een oppervlakte van ca. 15 m² en ca. 9 m². Aan de achterzijde ligt de derde slaapkamer, ca. 9 m² groot.
De badkamer, eveneens aan de achterzijde, is compleet en modern afgewerkt. Deze beschikt over een ligbad met douchefunctie, tweede toilet, wastafelmeubel met dubbele wastafel en een raam, waardoor daglicht binnenkomt en natuurlijke ventilatie mogelijk is. De badkamer is tevens voorzien van mechanische ventilatie.
Op de overloop is een airconditioning geïnstalleerd.
Tweede verdieping
Via een vaste trap bereiken we de tweede verdieping, een royale ruimte van ca. 29,5 m² met een zijraam.
Deze tweede verdieping biedt volop mogelijkheden. Naast de opstelplaats voor de wasmachine en de cv-ketel is deze ruimte dankzij de royale afmetingen en het prettige daglicht dat door het zijraam binnenvalt, eenvoudig te transformeren tot een vierde slaapkamer.
Tuin
De woning beschikt over een nette en ruime voortuin met oprit, waar plek is voor twee auto’s. In combinatie met de garage met kantelpoort kunnen zelfs drie auto’s geparkeerd worden.
De achtertuin is ruim en gelegen op het zuidwesten, volledig betegeld en voorzien van een zonnescherm, zodat je op warme dagen heerlijk van de buitenruimte kunt genieten. Daarnaast is er een charmant houten tuinhuis en een praktische buitendouche aanwezig, waardoor de tuin zowel sfeervol als functioneel is.
Bijzonderheden
* CV- ketel en mechanische ventilatie, respectievelijk € 44,35 en € 13,46 per maand (beide overeenkomsten zijn afgelopen en derhalve opzegbaar);
* Zonnepanelen, 14 stuks, geïnstalleerd in 2022, huur ca. € 64,- per maand, looptijd 15 jaar na installatie;
* Houten kozijnen met dubbele beglazing;
* Aanvaarding in overleg.
Tot slot:
* Deze verkoopinformatie is met de nodige zorgvuldigheid samengesteld. Hierbij zijn wij deels afhankelijk van informatie die wij van derden ontvangen. Aan onjuistheden en/of onvolkomenheden kunt u echter geen rechten ontlenen. Indien bepaalde informatie voor u van wezenlijk belang is dan adviseren wij u deze op juistheid te controleren. Onzerzijds wordt geen aansprakelijkheid aanvaardt voor enige onvolledigheid, onjuistheid of anderszins, dan wel de gevolgen daarvan. Alle opgegeven maten en oppervlakten zijn indicatief;
* Koper is te allen tijde gerechtigd om voor eigen rekening een bouwkundig onderzoek te (laten) verrichten, dan wel andere adviseurs te raadplegen teneinde een goed inzicht te verkrijgen in de staat van onderhoud of andere aspecten van de onroerende zaak. Koper dient bij het doen van een bod wel direct aan te geven of hij een dergelijk onderzoek wenst;
* Indien een CV-ketel en/of warmtevoorziening een huurtoestel is, dient koper deze overeenkomst over te nemen.
* De waarborgsom/bankgarantie is 10% van de koopsom. De koper dient deze 1 week na het vervallen van de ontbindende voorwaarden bij de desbetreffende notaris te deponeren;
* Ter bescherming van de belangen van zowel koper als verkoper, wordt uitdrukkelijk gesteld dat een koopovereenkomst met betrekking tot deze onroerende zaak eerst dan tot stand komt, nadat koper en verkoper de koopovereenkomst hebben getekend ("schriftelijkheidsvereiste").