Beschrijving
Charmante en sfeervolle twee-onder-een-kapwoning met karakter én comfort. Zeer goed onderhouden woning in de geliefde wijk Mariarade – Hoensbroek. Deze karakteristieke woning is gemoderniseerd met behoud van authentieke elementen! Denk hierbij aan de erker aan de voorzijde, de en-suite deuren in de woonkamer, de originele tegelvloer. Combineer dit met de mooie trappartij en de kenmerkende hoge plafonds en het plaatje is compleet.
Wat deze woning te bieden heeft:
* ruim 180 m² gebruikersoppervlakte;
* Royale woonkamer met fijn tuincontact;
* Ruime, moderne keuken, recent vernieuwd;
* Ruime badkamer en drie slaapkamers op de eerste verdieping;
* Vierde ruime slaapkamer op de tweede verdieping met badkamer en-suite;
* Ruime achtertuin met veel groen;
* Energielabel B;
* Goede ligging ten opzichte van voorzieningen, scholen en uitvalswegen naar de snelweg.
Kortom: een heerlijk gezinswoning op een geliefde locatie in Hoensbroek!
Kom kijken en laat je verrassen door de warme uitstraling en het wooncomfort van deze unieke plek.
Indeling
Bij binnenkomst in deze woning valt direct de ruime hal op, die de toon zet voor de rest van het huis. De originele vloer en de mooie trapopgang benadrukken het karakter van de woning. Er is een praktische garderobeplek gecreëerd om jassen netjes op te bergen, en de hal biedt toegang tot de modern toiletruimte met zwevend toilet.
Vanuit de hal loop je door naar de eetkamer, waar een sfeervolle open haard zorgt voor warmte en gezelligheid. De eetkamer en de woonkamer zijn beide voorzien van een goed onderhouden parketvloer met omlijsting. Wat verder opvalt hier is de gezellige erker aan de voorzijde en de mooie en-suite deuren.
Aansluitend aan de eetkamer bevindt zich de moderne keuken, die is uitgerust met een stijlvol composiet werkblad in combinatie met houtlook fronten en hoogwaardige inbouwapparatuur. Denk hierbij aan een 5-pits gaskookplaat, afzuigkap, Quooker, koelkast, vriezer en vaatwasser.
Woonkamer en keuken samen hebben een oppervlakte van ca. 40 m².
Vanuit de keuken is er toegang tot de bijkeuken, deze twee ruimtes zijn beide voorzien van vloerverwarming.
In de bijkeuken bevindt zich het aansluitpunt voor de wasmachine en droger, die netjes weggewerkt zijn in een op maat gemaakte kast. Daarnaast is er een keukenopstelling met close-in boiler. Vanuit zowel de bijkeuken als de eetkamer heb je uitzicht over de tuin, waardoor je altijd in verbinding staat met de buitenruimte.
Eerste verdieping
Eenmaal boven word je verwelkomd door een ruime overloop die toegang biedt tot drie royale slaapkamers en de badkamer. Elke kamer is licht en fris dankzij de grote ramen die zorgen voor een overvloed aan natuurlijk licht. De nette afwerking met een laminaatvloer en kunststof kozijnen geeft de kamers een moderne uitstraling.
De eerste slaapkamer bevindt zich aan de voorzijde van de woning en heeft met ruim 14 m² een royaal formaat.
Slaapkamer twee en drie liggen aan de achterzijde van de woning en kijken uit op de groene achtertuin.
Deze kamers meten respectievelijk ruim 8 en 12 m². Twee slaapkamers zijn uitgerust met een handige muurkast, ideaal voor extra opbergruimte. Bovendien zorgen extra raampjes voor een prettige lichtinval en een levendig uitzicht.
De volledig betegelde badkamer is praktisch ingedeeld en voorzien van een inloopdouche, een wastafelmeubel, een tweede toilet en een designradiator. Een groot raam zorgt voor voldoende daglicht en natuurlijke ventilatie.
Tweede verdieping
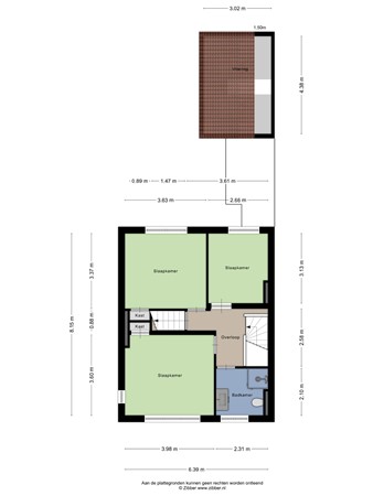
Via een trapopgang bereiken we de tweede verdieping, waar zich het master bedroom bevindt van ruim 34 m². Deze ruime kamer ademt karakter dankzij de houten spanten in het plafond. De dakkapel zorgt voor een fijne lichtinval en biedt een mooi uitzicht op de tuin.
De en-suite badkamer maakt deze verdieping compleet. Deze is voorzien een ligbad, een wastafelmeubel met twee kranen en een grote spiegel. Daarnaast is er een op maat gemaakte kast geïntegreerd, die niet alleen praktisch is, maar ook bijdraagt aan de strakke en nette afwerking van de ruimte.
Overige verdiepingen
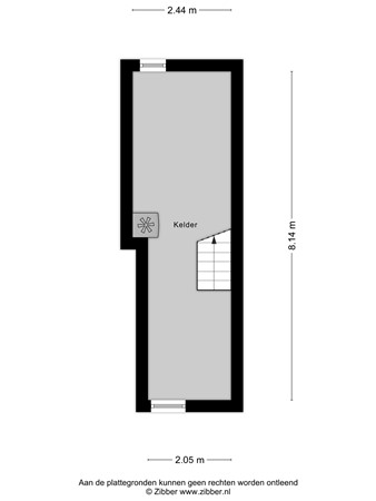
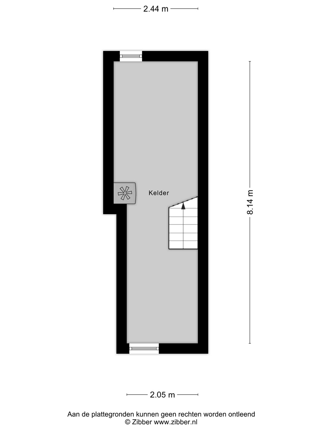
De woning is voorzien van een kelder en er is een vliering in de tuinberging.
Tuin
De zeer ruime achtertuin (ca 40 meter diep!) op het zuidwesten is een heerlijke plek. Met veel groen en een deels betegeld terras met een elektrisch zonnescherm biedt deze tuin volop mogelijkheden voor zowel zon- als schaduwplekken. Je bereikt de tuin via een schuifpui in de eetkamer of via de zij-ingang naast de woning. Aansluitend aan de bijkeuken bevindt zich een praktische buitenberging, ideaal voor extra opbergruimte.
Ook de voortuin is netjes onderhouden en zorgt voor een verzorgde entree van de woning.
Bijzonderheden
* Kunststof kozijnen met HR ++ beglazing;
* Spouwmuurisolatie en dakisolatie;
* Gevel is recent gereinigd;
* CV ketel 2009, eigendom;
* Volledige elektra vernieuwd incl. meterkast;
* Achterzijde woning deels voorzien van rolluiken;
* Aanvaarding in overleg.
Tot slot:
* Deze verkoopinformatie is met de nodige zorgvuldigheid samengesteld. Hierbij zijn wij deels afhankelijk van informatie die wij van derden ontvangen. Aan onjuistheden en/of onvolkomenheden kunt u echter geen rechten ontlenen. Indien bepaalde informatie voor u van wezenlijk belang is dan adviseren wij u deze op juistheid te controleren. Onzerzijds wordt geen aansprakelijkheid aanvaardt voor enige onvolledigheid, onjuistheid of anderszins, dan wel de gevolgen daarvan. Alle opgegeven maten en oppervlakten zijn indicatief;
* Koper is te allen tijde gerechtigd om voor eigen rekening een bouwkundig onderzoek te (laten) verrichten, dan wel andere adviseurs te raadplegen teneinde een goed inzicht te verkrijgen in de staat van onderhoud of andere aspecten van de onroerende zaak. Koper dient bij het doen van een bod wel direct aan te geven of hij een dergelijk onderzoek wenst;
* Indien een CV-ketel en/of warmtevoorziening een huurtoestel is, dient koper deze overeenkomst over te nemen.
* De waarborgsom/bankgarantie is 10% van de koopsom. De koper dient deze 1 week na het vervallen van de ontbindende voorwaarden bij de desbetreffende notaris te deponeren;
* Ter bescherming van de belangen van zowel koper als verkoper, wordt uitdrukkelijk gesteld dat een koopovereenkomst met betrekking tot deze onroerende zaak eerst dan tot stand komt, nadat koper en verkoper de koopovereenkomst hebben getekend ("schriftelijkheidsvereiste").