Beschrijving
Ruime twee-onder-een-kapwoning met garage, oprit en veel mogelijkheden gelegen in Kerkrade
Tegenover het voormalige Rodastadion, ligt deze ruime woning met volop potentie. Dankzij de indeling is het goed mogelijk om de woning aan te passen tot een levensloopbestendige woning. Met wat liefde en aandacht kan deze woning worden omgetoverd tot een fijne droomwoning, volledig naar eigen wens en smaak in te richten.
Wat maakt deze woning bijzonder?
* Woonoppervlakte ca. 130 m²;
* Perceel ca. 265 m²;
* 4 slaapkamers;
* Mogelijkheid tot levensloopbestendig wonen;
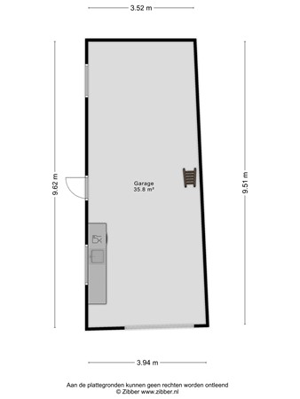
* Zeer ruime garage (ca. 35 m²);
* Ruime oprit voor meerdere auto’s;
* Kelder en vliering (garage) voor extra opslag.
Ligging & omgeving
De woning is centraal gelegen in Kerkrade, met diverse winkels, supermarkten en scholen op korte afstand. Ook sportvoorzieningen, medische faciliteiten en openbaar vervoer zijn gemakkelijk bereikbaar. Het centrum van Kerkrade ligt op korte afstand en via de nabijgelegen uitvalswegen zijn steden als Heerlen en Aken snel te bereiken.
Indeling
We betreden de woning via de entree, die toegang biedt tot de meterkast en de woonkamer. De woonkamer heeft een oppervlakte van circa 32,5 m² en is afgewerkt met een antracietkleurige laminaatvloer. Dankzij de raampartijen aan zowel de voor- als zijkant geniet de ruimte van veel natuurlijk daglicht. De ramen zijn voorzien van een vakverdeling, wat zorgt voor extra sfeer en karakter.
Aansluitend bereiken we de gesloten keuken van circa 14 m², met uitzicht over de achtertuin. De keuken is uitgerust met diverse inbouwapparatuur, waaronder een elektrische kookplaat (2025), afzuigkap, combi-magnetron, oven, vaatwasser en een koelkast met vriezer. Daarnaast beschikt de keuken over een vaste eettafel en is deze afgewerkt met een tegelvloer.
Via een kleine hal zijn de wasruimte met wasmachineaansluiting en de badkamer op de begane grond bereikbaar. Deze ruimte biedt de mogelijkheid om de woning levensloopbestendig te maken door een andere indeling te creëeren. De badkamer is momenteel voorzien van een zwevend toilet, dubbele wastafel met spiegelkast en een luxe douchecabine met bubbelbad. Vanuit de badkamer is er uitzicht over de achtertuin.
Eerste verdieping
Via de opnieuw beklede trap bereiken we de overloop van de eerste verdieping. Vanaf hier is er toegang tot drie slaapkamers met een oppervlakte van circa 12,4 m², 7,5 m² en 9,2 m², waarvan één slaapkamer is voorzien van een praktische bergkast. De gehele verdieping is afgewerkt met dezelfde antracietkleurige laminaatvloer, wat zorgt voor een rustige en uniforme uitstraling.
Tweede verdieping
Via de vaste, eveneens opnieuw beklede trap bereiken we de tweede verdieping. Hier bevindt zich de ruime vierde slaapkamer met een oppervlakte van circa 20,6 m². De kamer is voorzien van praktische inbouwkasten en een dakkapel, wat zorgt voor extra ruimte en lichtinval. Tevens bevindt zich in deze ruimte de opstelplaats van de cv-ketel.
Overige verdiepingen
De woning beschikt over een handige provisiekelder met een oppervlakte van circa 16,8 m² en een vliering in de garage, wat zorgt voor extra praktische bergruimte.
Tuin
Via de oprit met poort en de keuken is de leuke en goed verzorgde achtertuin bereikbaar. De ruime oprit biedt plaats aan meerdere auto’s, er is een zeer ruime garage van circa 35 m² met kantelpoort. De achtertuin is gelegen op het noordwesten en voorzien van een sfeervol vijvertje en een gezellig prieeltje, waardoor het een ideale plek is om te ontspannen en te genieten van de buitenlucht. De tuin is goed verzorgd en straalt een gezellige, uitnodigende sfeer uit.
Bijzonderheden
* CV- ketel, 2019, eigendom;
* Elektrische kookplaat 2025;
* Aanvaarding mogelijk op korte termijn.
Tot slot:
* Deze verkoopinformatie is met de nodige zorgvuldigheid samengesteld. Hierbij zijn wij deels afhankelijk van informatie die wij van derden ontvangen. Aan onjuistheden en/of onvolkomenheden kunt u echter geen rechten ontlenen. Indien bepaalde informatie voor u van wezenlijk belang is dan adviseren wij u deze op juistheid te controleren. Onzerzijds wordt geen aansprakelijkheid aanvaardt voor enige onvolledigheid, onjuistheid of anderszins, dan wel de gevolgen daarvan. Alle opgegeven maten en oppervlakten zijn indicatief;
* Koper is te allen tijde gerechtigd om voor eigen rekening een bouwkundig onderzoek te (laten) verrichten, dan wel andere adviseurs te raadplegen teneinde een goed inzicht te verkrijgen in de staat van onderhoud of andere aspecten van de onroerende zaak. Koper dient bij het doen van een bod wel direct aan te geven of hij een dergelijk onderzoek wenst;
* Indien een CV-ketel en/of warmtevoorziening een huurtoestel is, dient koper deze overeenkomst over te nemen.
* De waarborgsom/bankgarantie is 10% van de koopsom. De koper dient deze 1 week na het vervallen van de ontbindende voorwaarden bij de desbetreffende notaris te deponeren;
* Ter bescherming van de belangen van zowel koper als verkoper, wordt uitdrukkelijk gesteld dat een koopovereenkomst met betrekking tot deze onroerende zaak eerst dan tot stand komt, nadat koper en verkoper de koopovereenkomst hebben getekend ("schriftelijkheidsvereiste").