Beschrijving
Modern, energiezuinig en verrassend ruim wonen in Amby. Deze jonge, gasloze woning combineert comfort, ruimte en duurzaamheid met een hoogwaardige afwerking en een zonnige tuin.
Wat maakt dee woning bijzonder?
* Gasloos wonen met warmtepomp (2025) en 27 zonnepanelen
* Royale leefruimte met vide voor extra licht en ruimtelijkheid
* Vier slaapkamers, waaronder een ruime kamer op de tweede verdieping
* Moderne keuken (2022) en luxe badkamer (2023)
* Zonnige tuin op het zuidwesten met overkapping en nieuwe aanleg (2025)
* Inpandige garage en eigen oprit
* Vloerverwarming en energielabel A
De geliefde wijk Amby staat bekend om haar groene en rustige karakter, terwijl alle dagelijkse voorzieningen binnen handbereik zijn. Op loop- of fietsafstand vind je winkels, scholen en sportfaciliteiten. Bovendien zijn er uitstekende verbindingen met het centrum van Maastricht en de uitvalswegen richting de A2 (Luik/Eindhoven) en A76 (Heerlen/Aken).
Voor werk en studie liggen o.a. MUMC+, Universiteit Maastricht, UWC (Internationale School) en het MECC op slechts enkele autominuten.
De nabijgelegen Ambyerheide en het Zuid-Limburgse heuvelland bieden volop mogelijkheden om te wandelen en te fietsen in het groen.
Kortom: een ideale woonomgeving voor wie rust en ruimte zoekt, maar toch alles dichtbij wil hebben.
Indeling
Via de overdekte entree betreed je de woning en kom je in de hal, waar zich de meterkast en de modern uitgevoerde toiletruimte bevinden. Het toilet is voorzien van een zwevend closet en een fonteintje. Vanuit de hal is tevens de inpandige garage bereikbaar. Deze praktische ruimte beschikt over een kantelpoort aan de voorzijde, een wasmachineaansluiting en is via de oprit ook direct van buitenaf toegankelijk.
Vanuit de hal loop je door naar de royale leefruimte. Hier valt direct de open en lichte opzet van de woning op. De woonkamer en keuken zijn afgewerkt met een fraaie tegelvloer voorzien van comfortabele vloerverwarming, wat zorgt voor een moderne uitstraling en een aangenaam woonklimaat.
Aan de voorzijde van de woning bevindt zich de stijlvolle open keuken, die in 2022 is vernieuwd. De keuken is uitgevoerd met een composiet werkblad en beschikt over diverse hoogwaardige inbouwapparatuur, waaronder een inductiekookplaat met afzuiginstallatie (met afstandsbediening), een stoomoven, combi-magnetron oven, koelkast, diepvries en vaatwasser. De opstelling biedt volop werk- en bergruimte en vormt een mooie verbinding met het eetgedeelte.
De woonkamer is ruim van opzet en biedt alle mogelijkheden voor een comfortabele zit- en eethoek. Vanuit het eetgedeelte zorgt de vide voor een bijzonder ruimtelijk effect en een speelse architectonische uitstraling. Grote raampartijen en de schuifpui aan de achterzijde zorgen voor een prettige lichtinval en een fraaie verbinding met buiten.
Eerste verdieping
Via de vaste trap bereik je de eerste verdieping. De royale overloop vormt het centrale punt van deze verdieping en biedt opvallend veel extra ruimte. Dankzij de vide sta je hier in open verbinding met de leefruimte op de begane grond, wat zorgt voor een bijzonder ruimtelijk gevoel en een mooie lichtinval. De overloop leent zich daardoor uitstekend voor het inrichten van een werkplek, leeshoek of speelhoek.
De verdieping beschikt over drie slaapkamers. De grootste slaapkamer bevindt zich aan de voorzijde van de woning en biedt met een oppervlakte van circa 17 m² volop ruimte voor een royaal tweepersoonsbed en een kastenwand. Aan de achterzijde liggen nog twee slaapkamers van respectievelijk circa 9 m² en 7 m², ideaal te gebruiken als kinder-, werk- of logeerkamer. Alle slaapkamers zijn netjes afgewerkt en voorzien van vloerbedekking.
De badkamer is in 2023 vernieuwd en luxe uitgevoerd. De ruimte beschikt over een ligbad, een ruime inloopdouche en een stijlvol wastafelmeubel. Daarnaast bevindt zich op deze verdieping een separate toiletruimte met een zwevend toilet, wat zorgt voor extra comfort en praktisch gebruiksgemak.
Tweede verdieping
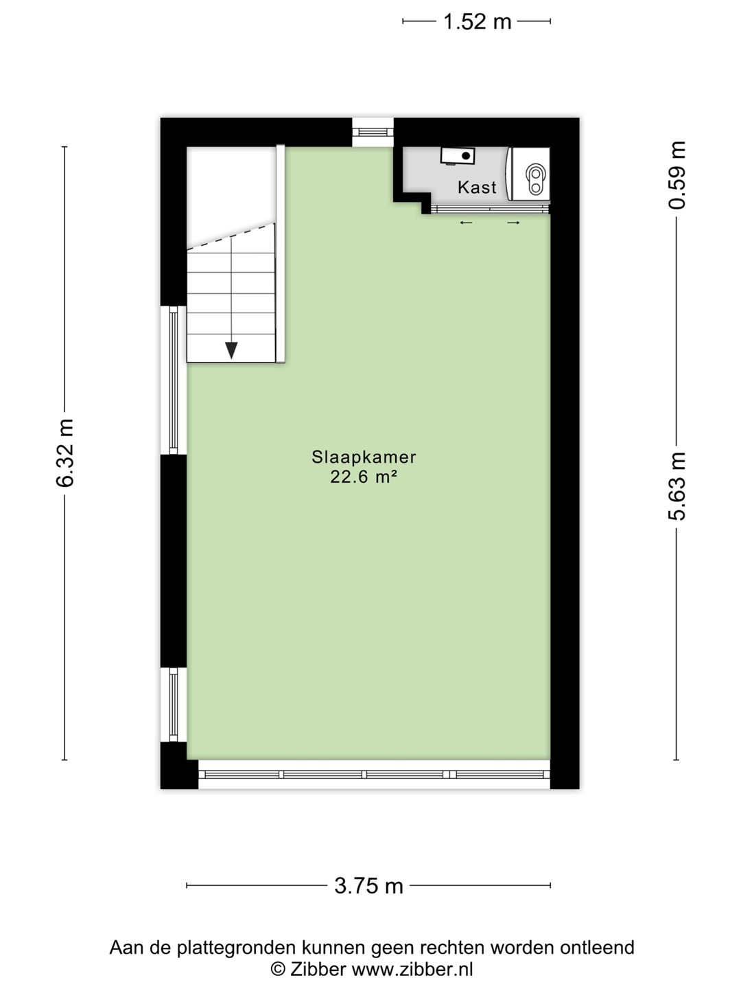
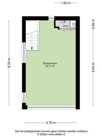
Via een vaste trap bereik je de tweede verdieping. Hier bevindt zich een verrassend ruime en open zolderverdieping die momenteel is ingericht als royale slaapkamer. Dankzij de grote raampartijen valt hier veel natuurlijk licht naar binnen, wat de ruimte een lichte en aangename sfeer geeft.
Met een oppervlakte van ruim 22 m² biedt deze verdieping volop mogelijkheden. De ruimte leent zich uitstekend als ruime hoofdslaapkamer, maar kan desgewenst ook worden ingericht als combinatie van slaap-, werk- of hobbyruimte.
Daarnaast bevindt zich op deze verdieping een separate technische ruimte waar onder andere de warmtepomp is opgesteld.
Tuin
Via de schuifpui stap je direct onder de royale overkapping in de tuin. Hierdoor ontstaat een verlengstuk van de leefruimte en een heerlijke plek om vrijwel het hele jaar door van het buitenleven te genieten. De tuin is in 2025 opnieuw aangelegd en verzorgd aangelegd met een combinatie van tegelwerk en kunstgras, wat zorgt voor een onderhoudsvriendelijke en nette uitstraling. Door de gunstige ligging op het zuidwesten kun je hier volop van de zon genieten.
Achter in de tuin staat bovendien een praktische stenen berging, ideaal voor het stallen van fietsen en het opbergen van tuinspullen.
Bijzonderheden
*Gasloze en energiezuinige woning met energielabel A;
* Warmtepomp (2025);
* 27 zonnepanelen;
* Vloerverwarming in de woonkamer en badkamer;
* Aanvullende verwarming middels infraroodpanelen;
* Houten kozijnen met dubbele beglazing, in 2025 geschilderd
* Rolluiken aanwezig
* Meterkast volledig vernieuwd.
Tot slot:
* Deze verkoopinformatie is met de nodige zorgvuldigheid samengesteld. Hierbij zijn wij deels afhankelijk van informatie die wij van derden ontvangen. Aan onjuistheden en/of onvolkomenheden kunt u echter geen rechten ontlenen. Indien bepaalde informatie voor u van wezenlijk belang is dan adviseren wij u deze op juistheid te controleren. Onzerzijds wordt geen aansprakelijkheid aanvaardt voor enige onvolledigheid, onjuistheid of anderszins, dan wel de gevolgen daarvan. Alle opgegeven maten en oppervlakten zijn indicatief;
* Koper is te allen tijde gerechtigd om voor eigen rekening een bouwkundig onderzoek te (laten) verrichten, dan wel andere adviseurs te raadplegen teneinde een goed inzicht te verkrijgen in de staat van onderhoud of andere aspecten van de onroerende zaak. Koper dient bij het doen van een bod wel direct aan te geven of hij een dergelijk onderzoek wenst;
* Indien een CV-ketel en/of warmtevoorziening een huurtoestel is, dient koper deze overeenkomst over te nemen.
* De waarborgsom/bankgarantie is 10% van de koopsom. De koper dient deze 1 week na het vervallen van de ontbindende voorwaarden bij de desbetreffende notaris te deponeren;
* Ter bescherming van de belangen van zowel koper als verkoper, wordt uitdrukkelijk gesteld dat een koopovereenkomst met betrekking tot deze onroerende zaak eerst dan tot stand komt, nadat koper en verkoper de koopovereenkomst hebben getekend ("schriftelijkheidsvereiste").